Obra Nueva
Pisos en venta en Galvany
Maravilloso dúplex de obra nueva con terraza en la zona alta de Barcelona
1.990.000 €
BCN075420010
Maravilloso dúplex de obra nueva con terraza en la zona alta de Barcelona
1.990.000 €
194 m²
Plano
66 m²
Terraza
3
Dormitorios
3
Baños
Extras
Año de construcción: 2025
Obra nueva
Aire acondicionado
Calefacción
Orientación: sur, oeste
Descripción del inmueble
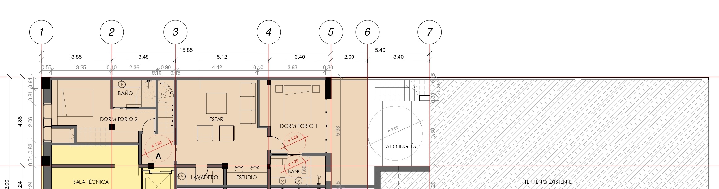
Imagina vivir en un lugar donde cada detalle está pensado para ti. En el corazón de Galvany, uno de los barrios más prestigiosos y codiciados de Barcelona, te espera este exclusivo dúplex de obra nueva rehabilitada que redefine el concepto de hogar. Está situado en un edificio único e histórico totalmente rehabilitado, con solo 3 viviendas de lujo.
La propiedad tiene 194 m2 construidos interiores y una terraza de 66 m2. La planta principal (100,84 m2) dispone de un amplio salón-comedor con cocina abierta. Desde aquí accedemos al fabuloso jardín, un espacio ideal en el que disfrutar al aire libre en plena ciudad de momentos compartidos con familia y amigos, agradables comidas o simplemente descansar. Volviendo al interior, encontramos un dormitorio doble, un cuarto de baño completo y un aseo de cortesía.
La planta inferior (93,1 m2) tiene una sala de estar con zona de estudio, que podría ser una sala polivalente para cualquier uso, 2 habitaciones dobles en suite con su cuarto de baño privado y un lavadero.
La vivienda estará equipada con domótica, aire acondicionado frío/calor por conductos, mobiliario y electrodomésticos de alta gama en la cocina, suelos de parquet de madera de roble, cerramientos de aluminio, ventanas con doble cristal, etc.
Frente al encantador Jardín de Les Tres Torres, esta vivienda combina la serenidad de un entorno residencial con la proximidad a los mejores servicios de la zona alta de Barcelona: comercios exclusivos, colegios internacionales, escuelas de negocios, centros médicos privados y una conexión excelente con el centro de Barcelona mediante transporte público.
No dudes en contactar con Bcn Advisors para descubrir tu futuro hogar.
Mapa
* Te indicaremos la dirección cuando agendemos la visita.
BCN075420010
1.990.000 €
Pisos en venta en Galvany

Este inmueble se encuentra en:
Otros inmuebles en Galvany
Inmuebles similares que te pueden interesar
Vendido
Pisos en venta en La Dreta
1.600.000 €
BCN075270010
Excelente piso reformado a estrenar en finca regia cerca de Paseo de Gracia
Esta fabulosa vivienda se sitúa en una finca regia impecablemente conservada, ubicada en la prestigiosa calle Mallorca, al lado de Rambla de Catalunya y el Paseo de Gracia. Una ubicación inmejorable en el corazón de l’Eixample, rodeada de las mejores boutiques, restaurantes y servicios de la ciudad. Con elegancia y diseño contemporáneo, esta propiedad combina a la perfección el encanto arquitectónico tradicional con el confort de los acabados más exclusivos. El piso tiene 176 m2 construidos y 2 balcones que suman 5,8 m2. Al entrar, un espacioso recibidor distribuye la vivienda en dos áreas principales. La zona de día, con más de 65 m², ofrece un impresionante salón y un amplio comedor conectados por una elegante pared arqueada, creando un ambiente sofisticado y armonioso. Dos balcones exteriores inundan el espacio de luz natural, realzando la amplitud y el carácter de la vivienda. La cocina de concepto abierto, totalmente equipada con electrodomésticos de alta gama, dispone de una gran isla central con zona de cocción y espacio para taburetes, ideal tanto para el día a día como para recibir invitados. La zona de noche alberga 3 impresionantes habitaciones en suite, cada una con cuarto de baño privado. Los dormitorios, de generosas dimensiones, han sido diseñados para ofrecer un ambiente exclusivo y acogedor, donde los techos originales restaurados y los detalles en tonos cálidos aportan un sello de distinción único. Los cuartos de baño combinan minimalismo y funcionalidad con acabados de alta calidad, mientras que los suelos de parqué de roble en espiga refuerzan el estilo elegante y atemporal de la vivienda. El piso está equipado con suelos de parquet en espiga, aire acondicionado frío/calor por conductos y calefacción por radiadores. Además, dispone de una zona de lavandería y un aseo de cortesía para mayor comodidad. La finca, de gran valor histórico, se encuentra en excelente estado y ofrece servicio de conserjería y 2 ascensores. Si buscas un hogar exclusivo en una de las ubicaciones más codiciadas de Barcelona, esta es una oportunidad única. Contáctanos para una visita y descubre el encanto de esta propiedad incomparable.
176.51 m²
Plano
5.8 m²
Terraza
3
Dormitorios
3
Baños
1.600.000 €
Novedad
Pisos en venta en La Dreta
1.995.000 €
BCN077160010
Fabulosa y amplia vivienda reformada con elementos originales en el Eixample
En pleno corazón del Eixample, este exclusivo piso de 202 m² construidos interiores ha sido completamente renovado con un exquisito proyecto de reforma que ha sabido preservar la esencia modernista original. La propiedad mantiene piezas únicas de gran valor patrimonial, como los suelos de mosaico hidráulico de Nolla, techos de gran altura decorados con delicados motivos florales y geométricos, carpintería de madera restaurada, ventanas ornamentadas y una elegante chimenea de mármol que aporta carácter y distinción a la zona principal. Un amplio y señorial recibidor da la bienvenida y organiza la vivienda de forma funcional, diferenciando claramente la zona de día y la zona de noche. La zona social se compone de un generoso salón lleno de luz natural, conectado con una agradable galería y con salida a un balcón orientado a tranquilo patio de manzana, un espacio ideal para disfrutar de la calma en pleno centro de la ciudad. La cocina independiente, completamente equipada con electrodomésticos de alta gama y vinoteca, combina diseño y funcionalidad. Junto a ella se sitúa el comedor, creando un entorno perfecto tanto para el día a día como para recibir invitados. Esta área se completa con una práctica zona de aguas independiente. La zona de descanso alberga 3 dormitorios dobles y 3 cuartos de baños completos. La suite principal dispone de un amplio vestidor y baño privado, ofreciendo un espacio íntimo y confortable. Además, tiene 2 balcones que dan a la calle. Todos los espacios del piso tienen luz natural. La vivienda, en la cuarta planta real, está equipada con sistema de climatización por conductos, tanto aire acondicionado como calefacción, garantizando el máximo confort durante todo el año. La finca, perfectamente conservada, ofrece además trastero en la azotea, terraza comunitaria y servicio de conserjería. Este piso se sitúa a escasos pasos de Rambla Catalunya, el Paseo de Gracia y Plaza Catalunya, lo que supone disfrutar de una de las ubicaciones más privilegiadas de Barcelona en pleno Eixample y muy cerca del centro de la ciudad. Rodeado de arquitectura emblemática, boutiques internacionales, restaurantes de referencia y todos los servicios, este enclave combina el dinamismo del centro con la elegancia del Eixample. Una localización que no solo garantiza calidad de vida, sino también una sólida proyección patrimonial en una de las zonas más demandadas de la ciudad. No dudes en conatctar con Bcn Advisors para visitar este inmueble.
202 m²
Plano
7 m²
Terraza
3
Dormitorios
3
Baños
1.995.000 €
Pisos en venta en Diagonal Mar
1.995.000 €
BCN030780011
Excepcional piso con terrazas, parking y maravillosas vistas en Diagonal Mar
Este piso se sitúa en la décima planta del edificio de lujo "Illa del Llac" en Diagonal Mar. Tiene 222 m2 construidos interiores y dos fabulosas terrazas de 26 m2 con espectaculares vistas al mar y la ciudad de Barcelona. El precio incluye dos plazas de parking y un trastero. Se trata de una vivienda a tres vientos, ya que tiene orientación este hacia el mar, sur hacia Barcelona y norte hacia el Maresme, por lo que la luz natural es impresionante. Esta propiedad es fruto de la unión de dos entidades registrales independientes, por lo que es posible reconvertirlo de nuevo en 2 pisos independientes. El salón-comedor con cocina abierta de diseño y biblioteca es amplísimo y muy luminoso, con ventanales del suelo al techo y salida a una de las terrazas. Se trata de una zona de día espectacular para disfrutar del confort en el interior y del aire libre en el exterior, celebrando animadas comidas y reuniones o simplemente descansando y contemplando las vistas. La zona de noche tiene un total de 5 habitaciones, 3 cuartos de baño y un aseo. El dormitorio principal en suite es impresionante y está bañado de luz natural, ya que es esquinero y tiene acceso a la segunda terraza del piso. Dispone de vestidor y un cuarto de baño en suite con bañera de hidromasaje. Uno de los dormitorios tiene acceso a esa misma terraza y otro, a la misma terraza que el salón. Por último, actualmente hay un segundo salón/sala de cine que podría ser una habitación. El piso está equipado con materiales y acabados de primera calidad como suelos de mármol, sistema domótico para controlar la iluminación, las persianas y las cortinas; música en toda la planta y aire acondicionado por conductos con bomba de calor. El edificio ofrece muchísimas facilidades: zonas ajardinadas ideales para niños, 2 piscinas (para adultos y para niños), dos pistas de pádel, gimnasio con máquinas de última generación, salón social y parque infantil. Además, tiene seguridad 24h en accesos, servicio de conserjería y tres ascensores. Vivir en un piso en el barrio de Diagonal Mar ofrece una calidad de vida excepcional. Destaca por su excelente comunicación con transporte público, amplias zonas verdes y la proximidad al mar. Es ideal para quienes buscan comodidad y modernidad: cuenta con centros comerciales como Diagonal Mar con tiendas, restaurantes y ocio. Además, hay centros educativos, instalaciones deportivas y servicios de salud en los alrededores. Las playas, paseos marítimos y espacios para correr o pasear hacen que el bienestar diario sea una prioridad. Diagonal Mar combina urbanismo moderno con un entorno dinámico y familiar, perfecto para vivir. No dudes en contactar con Bcn Advisors para visitar este piso
222 m²
Plano
52 m²
Terraza
5
Dormitorios
3
Baños
1.995.000 €
Pisos en venta en La Dreta
1.800.000 €
BCN073739709
Espectacular piso de lujo reformado a estrenar al lado de Paseo de Gracia
Este impecable piso se sitúa entre Paseo de Gracia y Rambla Catalunya, una de las ubicaciones más prestigiosas de Barcelona en la parte alta de la Dreta del Eixample. La reforma de lujo ha cuidado al máximo todos los detalles en concepción, materiales y acabados, destacando los suelos y techos diseñados exclusivamente para este piso y el exquisito trabajo de marquetería en los suelos y la carpintería. La vivienda tiene 170 m2 construidos interiores y un balcón de 10 m 2. Ocupa toda la planta Principal de una finca regia totalmente rehabilitada en 2017 con ascensor y solo un piso por planta. Su doble orientación hace que sea una propiedad muy luminosa Un gran recibidor distribuye a ambos lados las zonas de día y de noche. El gran salón-comedor es maravilloso y disfruta de techos muy altos que aportan una gran sensación de amplitud y luminosidad. Tiene acceso al balcón, con orientación este hacia la calle. La cocina office de alta gama Bulthaup es muy amplia, está equipada con electrodomésticos Gaggenau y tiene un lavadero independiente. Completa este área un aseo de cortesía. La zona de noche está formada por dos dormitorios en suite. La impresionante habitación principal, que da al patio de manzana con orientación oeste, dispone de un enorme vestidor y un cuarto de baño ubicado en una preciosa galería. El segundo dormitorio también tiene un walk in closet, así como cuarto de baño privado, y es interior. El piso está equipado con suelos y techos decorados a mano únicos, carpintería original restaurada con doble cristal, sistema de domótica, aire acondicionado por conductos y calefacción mediante radiadores de hierro forjado. Los alrededores ofrecen una amplia variedad de servicios y comercios, boutiques de primeras marcas en Paseo de Gracia, Rambla Catalunya y la Avenida Diagonal, entidades de prestigio, restaurantes y una excelente oferta de transporte público. No dudes en conntactar con Bcn Advisors para visitar este piso.
170 m²
Plano
10 m²
Terraza
2
Dormitorios
2
Baños
1.800.000 €
Obra nueva en venta en La Dreta
2.195.000 €
BCN068547643
Maravilloso y amplio piso de obra nueva en edificio clásico del Eixample
Esta fantástica promoción de obra nueva de lujo se sitúa en una de las mejores localizaciones del Eixample, a una calle del Paseo de Gracia y muy cerca del centro de la ciudad. Se trata de un edificio de 1882, en el que se ha recuperado la fachada principal y se ha restaurado la fachada posterior acristalada. Además, todos los elementos arquitectónicos como balaustradas, barandillas, pilares de fundición y vidrieras se mantienen y se han restaurado y conservado el señorial vestíbulo de entrada al edificio y el patio interior. Este piso se sitúa en la quinta planta, está orientado hacia el patio de manzana interior y tiene 184,67 m2 construidos. La distribución divide las zonas de día y noche en dos extremos. El amplio salón-comedor es muy tranquilo, ya que está orentado hacia el patio interior de manzana, y luminoso, gracias a sus puertas correderas desde el suelo hasta el techo. Además, hay una galería a modo de patio, ideal para crear un ambiente diferente y relajarse con vistas al precioso patio de manzana interior. La cocina es semiabierta y se puede acceder a ella desde el distribuidor o desde la zona de comedor. La zona de noche tiene 4 habitaciones y 3 cuartos de baño. La master suite con cuarto de baño propio está orientada hacia el patio de manzana. Las otras 3 habitaciones son dobles: una da al patio de manzana y las otras dos al patio de luces. Esta vivienda está equipada con suelos de parquet, muebles de cocina Santos, electrodomésticos Siemens, puerta de entrada acorazada, armarios empotrados en las habitaciones, sistema de aerotermia, calefacción por suelo radiante e iluminación Led. Se logra un perfecto equilibrio entre la arquitectura propia del Eixample y unos interiores modernos y cosmopolitas. El edificio tiene aparcamiento privado. Se trata de una oportunidad única de tener los mejores servicios y comercios de Barcelona en los alrededores, con el encanto típico del Eixample y el confort de una obra nueva.
184.67 m²
Plano
4
Dormitorios
3
Baños
2.195.000 €
Novedad
Áticos en venta en Tres Torres
1.790.000 €
BCN077510010
Fantástico ático con soleadas terrazas, piscina y parking en Les Tres Torres
Este magnífico ático está situado en el prestigioso barrio de Les Tres Torres, una de las zonas residenciales más valoradas de Barcelona. Destaca por sus amplias terrazas orientadas al sur, piscina privada y absoluta privacidad. La vivienda también incluye 2 plazas de parking en la misma finca y 2 trasteros, aportando un plus de funcionalidad. El edificio, cuidado y de carácter exclusivo, ofrece acceso a través de una agradable zona comunitaria que dispone de piscina exterior, piscina interior y sala polivalente, ideal para celebrar eventos y reuniones. El ático tiene 183 m2 construidos interiores y 195 m2 exteriores. Cuenta con dos impresionantes terrazas: una terraza inferior de 60 m², conectada directamente con el salón, y una terraza superior de 135 m², accesible a través de unas escaleras de caracol, con solárium y piscina privada de 4x4 m. Ambas terrazas disfrutan de vistas despejadas y crean una conexión fluida entre interior y exterior, aportando una sensación de amplitud y bienestar única. En la planta superior también encontramos un estudio independiente de 25 m², accesible tanto desde la terraza como desde el interior de la vivienda. El acceso a la vivienda se realiza a través de un elegante recibidor que conduce a un amplio salón-comedor en dos ambientes, con salida directa a la terraza. La cocina independiente, con grandes ventanales, se complementa con zona de lavandería y área de servicio. La zona de noche se compone de suite principal con baño y vestidor, esquinera y con agradables vistas a jardín; 2 dormitorios dobles que comparten un cuarto de baño; y una estancia adicional, ideal como cuarto dormitorio, despacho o sala de juegos. Todas las habitaciones son exteriores y cuentan con acceso directo a la terraza, al igual que los baños, lo que garantiza luz natural en toda la vivienda. Ubicado en Les Tres Torres, este ático disfruta de un entorno tranquilo y exclusivo, con comercios de proximidad, espacios gastronómicos y cercanía al Mercat de les Tres Torres. Cuenta además con excelentes conexiones mediante los Ferrocarrils de la Generalitat de Catalunya, autobuses y acceso rápido a vías principales como la Via Augusta, la Ronda del General Mitre y la Ronda de Dalt. Este ático excepcional combina espacio, privacidad, luz y exclusividad en una de las mejores zonas de Barcelona. No dudes en contactar con Bcn Advisors para visitarlo.
183 m²
Plano
195 m²
Terraza
4
Dormitorios
3
Baños
1.790.000 €
























































































