En exclusiva
Reservado
Áticos en venta en El Fort Pienc
Formidable y luminoso ático dúplex con 5 habitaciones en Eixample
749.000 €
BCN075370010
Formidable y luminoso ático dúplex con 5 habitaciones en Eixample
749.000 €
150 m²
Plano
5
Dormitorios
3
Baños
Extras
Año de construcción: 1993
A actualizar
Aire acondicionado
Calefacción
Clase energética: E
Calificación de emisiones: E
Descripción del inmueble
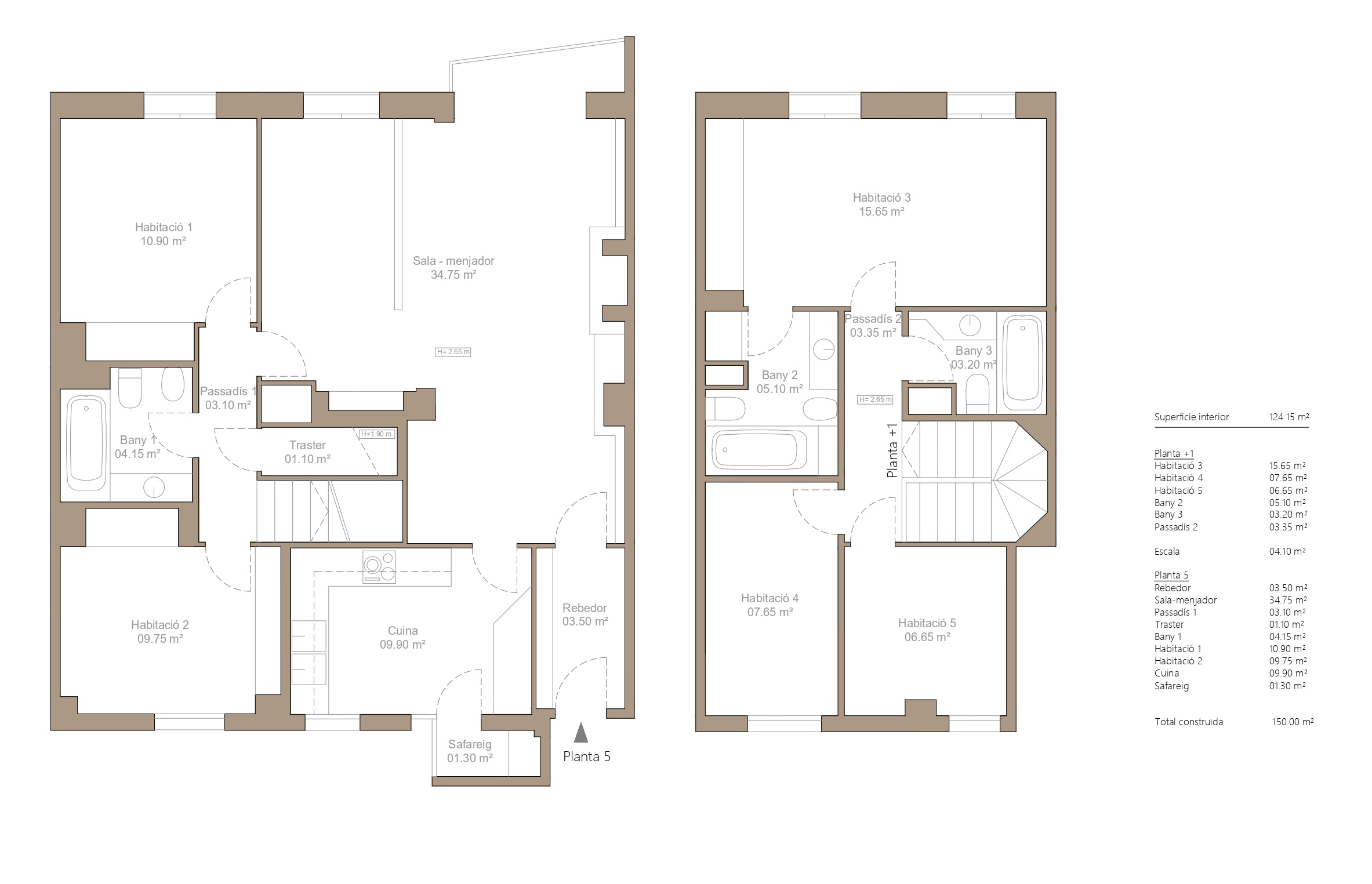
Este ático dúplex en finca de reciente construcción (1993) destaca por su excelente distribución, ya que ofrece 5 dormitorios y 3 cuartos de baño en sus 150 m2 construidos interiores.
La vivienda está en las plantas 5 y 6 del edificio, por lo que es increíblemente luminosa incluso en las estancias interiores, ya que dan a un patio de luces muy amplio. Las estancias exteriores disfrutan de vistas muy despejadas, ya que enfrente no tiene edificio de viviendas, sino una zona arbolada.
La planta principal nos da la bienvenida con un recibidor, que da paso al amplio y acogedor salón-comedor con chimenea y vigas de madera a la vista. Los grandes ventanales exteriores hacia la calle llenan el espacio de luz natural y aportan unas vistas espectaculares y muy despejadas. Por su parte, la cocina es grande y tiene un lavadero anexo. Esta planta se completa con 2 habitaciones dobles y un cuarto de baño completo.
La planta superior tiene 3 dormitorios más. Aquí se encuentra la habitación principal en suite, con cuarto de baño propio y armarios empotrados, que disfruta de las mismas vistas despejadas que el salón. Los otros 2 dormitorios son dobles y comparten un cuarto de baño completo.
El ático está equipado con aire acondicionado por splits, calefacción por radiadores de gas natural e hilo musical. Además, es posible comprar una plaza de parking doble para coche grande y coche pequeño o motos y/o bicis, por 40.000 € adicionales.
Esta propiedad se sitúa en una zona muy agradable del Eixample, cerca del Parque de Les Glòries y el Parque de la Estación del Norte. Dispone en los alrededores de numerosos comercios y servicios, zonas verdes y una excelente comunicación con el resto de la ciudad mediante metro, bus y tranvía.
No dudes en contactar con Bcn Advisors para visitar este ático dúplex.
Mapa
* Te indicaremos la dirección cuando agendemos la visita.
BCN075370010
749.000 €
Áticos en venta en El Fort Pienc

Este inmueble se encuentra en:
Otros inmuebles en El Fort Pienc
Inmuebles similares que te pueden interesar
Vendido
Pisos en venta en El Putxet
749.000 €
BCN075550010
Maravilloso piso reformado a estrenar con patio en Sant Gervasi
Ese piso ideal para familias ha sido reformado integralmente y dispone de 128 m2 construidos interiores, un patio de 8 m2 y 3 habitaciones. Se sitúa en la zona alta de Barcelona, en un barrio residencial tranquilo y prestigioso cerca del parque del Turó del Putxet, la plaza Lesseps y Gracia. La vivienda está en la primera planta de un edificio con ascensor y da a una calle peatonal muy tranquila. Al entrar, un recibidor nos conduce directamente a la fantástica zona de día, que es un salón-comedor con cocina abierta e isla central. La luz natural es abundante gracias a un amplio ventanal y la sensación de bienestar es muy acogedora. Al lado de la zona de la cocina hay un lavadero oculto. Volviendo a la entrada, accedemos al patio, un lugar ideal para relajarse al aire libre y tener tu pequeña vía de escape en medio de la gran ciudad. La zona de noche se distribuye cómodamente alrededor de un pasillo que conecta con el salón-comedor. Hay una gran habitación en suite, con cuarto de baño propio y armario empotrado, y 2 habitaciones dobles, todas muy luminosas. El piso está equipado con suelo laminado Pergo de alta gama y suelo porcelánico en la cocina, cocina Santos, electrodomésticos integrados Miele, aire acondicionado frío/calor por conductos con 2 máquinas en la zona de día y en la zona de noche, sistema de aerotermia para el agua caliente, persianas eléctricas y luces de ambiente. El edificio tiene parking. Este piso dispone en los alrededores de todos los servicios y comercios para tu día a día y zonas verdes, además de ventajas exclusivas como colegios internacionales o centros médicos privados. Tiene cerca paradas de metro, autobús y Ferrocarrils de la Generalitat para una rápida conexión con cualquier punto de la ciudad. No dudes en contactar con Bcn Advisors para visitar este piso.
128 m²
Plano
8 m²
Terraza
3
Dormitorios
2
Baños
749.000 €
En exclusiva
Vendido
Pisos en venta en Gòtic
800.000 €
BCN075400010
Increíble y luminoso piso modernista reformado a estrenar en el Barrio Gótico
Este maravilloso piso reformado con elementos originales modernistas se sitúa en el corazón de Barcelona, en una de las mejores calles del Barrio Gótico, a pocos pasos del Teatro del Liceu, la Basílica de Santa Maria del Pi y la Plaza de Sant Jaume. Está en la 3ª planta real de un edificio catalogado de gran valor arquitectónico con ascensor. La vivienda destaca por sus preciosos suelos hidráulicos de mosaico Nolla y los techos altos de 3,5 metros que aportan una sensación única de amplitud. El edificio solo tiene 4 plantas, por lo que este piso solo tiene una vivienda encima. Este hecho, junto a los amplios patios interiores de la finca, le aporta una gran luminosidad. Este piso tiene 153 m2 construidos interiores. Un amplio recibidor nos da la bienvenida y nos conduce a la amplia zona de día, dividida en dos espacios diferenciados pero comunicados entre sí: sala de estar y comedor con cocina abierta. Cada zona tiene un balcón que da a la calle, garantizando la entrada de luz natural. Aquí también hay un pequeño cuarto que puede usarse como trastero. La zona de noche dispone de 3 dormitorios y 3 cuartos de baño. El maravilloso dormitorio principal es en suite con cuarto de baño privado y vestidor. A su lado hay una amplia habitación doble y un cuarto de baño independiente. En la parte central del piso hay una habitación mediana y otro cuarto de baño. La reforma se ha realizado con materiales y diseño de primera calidad de la mano de un reconocido equipo de interioristas. El piso está equipado con aire acondicionado frío/calor por conductos y cerramientos y ventanas restauradas con doble acristalamiento. El edificio es hermoso, con una gran puerta noble de acceso, la escalera intacta con acabados originales muy cuidados y un terrado comunitario con excelentes vistas sobre el casco histórico de Barcelona. El ascensor se ha integrado perfectamente respetando la historia de la finca. En este piso podrás disfrutar de toda la historia de Barcelona en los alrededores, con sus calles y plazas tradicionales. Además, dispone de numerosos comercios y servicios, bares y restaurantes, teatros y una excelente conexión mediante transporte público. No dudes en contactar con Bcn Advisors para visitar este inmueble.
153 m²
Plano
2 m²
Terraza
3
Dormitorios
3
Baños
800.000 €
Vendido
Áticos en venta en El Fort Pienc
890.000 €
BCN075620010
Fantástico ático con terraza, vistas a La Sagrada Familia y licencia turística
Este maravilloso ático tiene una ubicación privilegiada en el Eixample de Barcelona y maravillosas vistas directas a La Sagrada Familia, al mar y al skyline de Barcelona. Es una oportunidad única tanto para vivir como para invertir. Actualmente dispone de licencia turística, con una facturación anual estable superior a 70.000 € en los últimos 2 años, sin necesidad de reforma ni actualización. Asimismo, es el lugar perfecto para fijar tu residencia en Barcelona y disfrutar de su magnífica terraza y de todos los servicios en los alrededores. El ático, en la décima planta, tiene 120 m2 construidos interiores (incluyendo 30 m2 de cerramiento consolidado) y una terraza de 60 m2 a pie de salón. El salón-comedor es acogedor y da paso a una zona chill-out y a la espectacular terraza. Es el lugar ideal para disfrutar al aire libre de reuniones con familia y amigos, de la puesta de sol, de comidas y cenas y de momentos de descanso. La cocina es independiente y está equipada con electrodomésticos. La zona de noche tiene 2 habitaciones dobles, con posibilidad de habilitar una tercera. El dormitorio principal es en suite con cuarto de baño propio y tiene salida a la terraza. Además, hay un cuarto de baño independiente. La propiedad está en buen estado, con acabados modernos. El ático está equipado con suelos de parquet, carpintería de aluminio, aire acondicionado frío/calor por conductos y calefacción por radiadores de gas natural. El edificio tiene 2 ascensores y servicio de conserjería. Este ático está muy cerca del agradable Paseo Sant Joan, con numerosos bares y restaurantes, y a solo 500 metros de La Sagrada Familia. A unos 20 minutos andando del Paseo de Gracia y del Arc de Triomf, podrás disfrutar de todos los encantos del Eixample, teniendo a tu alcance todos los servicios para tu día a día y una amplia oferta de transporte público. Se trata de una oportunidad de inversión sólida y demostrada, ideal para inversores, patrimonialistas o quienes buscan una segunda residencia con alta rentabilidad garantizada desde el primer día. No dudes en contactar con Bcn Advisors para visitar este ático.
120 m²
Plano
60 m²
Terraza
2
Dormitorios
2
Baños
890.000 €
En exclusiva
Reservado
Áticos en venta en El Born
795.000 €
BCN070510011
Fantástico ático reformado en edificio histórico de El Born con terraza
En el corazón del Born, donde las calles empedradas cuentan siglos de historia y el arte se respira en cada esquina, se alza un edificio histórico que guarda un secreto en su última planta: un ático que combina la esencia de la Barcelona más auténtica con el confort y el diseño contemporáneo. A solo unos pasos de la majestuosa Basílica de Santa Maria del Mar y del Museo Picasso, esta vivienda se encuentra en una de las zonas más vibrantes y deseadas de la ciudad. Tiendas con encanto, restaurantes de autor y galerías de arte conviven con la tranquilidad de los callejones medievales. Además, su excelente conexión mediante la línea 4 de metro (estación Jaume I) te sitúa en cualquier punto de la ciudad en cuestión de minutos. Subir a la tercera y última planta de este edificio es como ascender a otro tiempo, pero con todas las comodidades de hoy. Desde el primer paso, la luz natural inunda cada rincón, realzando los materiales nobles y las texturas que hacen de este ático un espacio con alma. Su posición esquinera y su altura privilegiada permiten disfrutar del sol durante casi todo el día. La reforma fue concebida con una idea clara: abrir el espacio, dejar respirar la luz y crear una sensación de amplitud difícil de encontrar en El Born. Los techos altos con bóveda catalana recuerdan la tradición arquitectónica de la ciudad, mientras que la distribución abierta ofrece una experiencia de vida moderna, cálida y acogedora. Con 159 m² según plano (173 m² según Nota Simple), el piso se organiza con elegancia. Un amplio recibidor da paso al distribuidor que conecta con la zona de día, compuesta por un salón, un comedor y una cocina que comparten protagonismo en un gran espacio central. En los extremos, 3 habitaciones ofrecen privacidad y tranquilidad, acompañadas de un cuarto de baño amplio y luminoso. El edificio conserva su encanto original: mosaicos artesanales restaurados, una puerta automática que da acceso al ascensor exclusivo para los pisos altos, y una joya común: una terraza comunitaria de 400 m² que se convierte en un auténtico oasis urbano, con rincones pensados para relajarse, disfrutar del sol o contemplar las vistas sobre los tejados del Born. Más que un piso, este ático es una experiencia. Una invitación a vivir la historia de Barcelona desde las alturas, con la luz como protagonista. No dudes en contactar con Bcn Advisors para visitarlo.
158.9 m²
Plano
3
Dormitorios
1
Baños
795.000 €
Pisos en venta en Sant Antoni
799.000 €
BCN076040010
Excepcional y encantadora vivienda con elementos originales en Sant Antoni
Esta vivienda es una pieza única por sus características, estructura y elementos originales, para quienes buscan simplemente algo especial y bohemio. Se sitúa en el barrio de Sant Antoni, cerca de la Plaza Espanya y la Avenida del Paral·lel y es todo un refugio que te trasladará a un ambiente singular en plena ciudad. La propiedad está en la planta baja y dispone de 168 m2 construidos interiores repartidos en 3 plantas, además de un patio de 5 m2. La planta principal es la zona de día, un amplio espacio que permite crear varios ambientes como salón, comedor y una zona chill out más relajada. La cocina queda integrada en este espacio y dispone de una península que también se puede utilizar como barra. En esta planta está el patio, ideal para disfrutar al aire libre. Completan esta planta un trastero y un aseo. En esta planta destacan las paredes de ladrillo visto y las vigas de madera a la vista. Si bajamos a la planta sótano, encontramos una espectacular zona que nos recibe con un arco y en el que podemos contemplar todas las paredes de ladrillo y piedra como un vestigio del pasado, creando un ambiente único. En esta planta encontramos el dormitorio principal con un enorme espacio para ubicar también zonas de relax, un vestidor y un cuarto de baño. Además, dos arcos nos dan acceso a un patio cubierto para crear otro ambiente. Volviendo a la planta principal, subimos por las escaleras a la planta altillo. Aquí encontramos una zona de estudio perfecta para teletrabajar, 2 dormitorios dobles y un cuarto de baño completo. Las vigas a la vista siguen presentes, también con techos abovedados en las habitaciones. La vivienda está equipada con suelos de parquet y aire acondicionado por splits. No dudes en contactar con Bcn Advisors para visitar esta vivienda.
168 m²
Plano
5 m²
Terraza
3
Dormitorios
3
Baños
799.000 €
Vendido
Pisos en venta en Raval
850.000 €
BCN057840012
Amplio y céntrico piso alto con mucho potencial en la Ronda de Sant Antoni
Este piso disfruta de una ubicación envidiable muy cerca del centro de la ciudad, a pocos pasos de la Plaza Universitat, la Dreta del Eixample y el casco histórico, y a solo 15 minutos caminando de Plaza Catalunya. La zona dispone de numerosos servicios, tiendas de barrio, centros comerciales, boutiques de primeras marcas, restaurantes y ofertas de ocio. Además, tiene una excelente comunicación mediante transporte público. El piso tiene 158 m2 construidos interiores y un balcón de 15 m2. Es muy luminoso, ya que todas las estancias con exteriores y se sitúa en la quinta planta real de una finca regia. Actualmente se distribuye en salón, cocina independiente, 6 habitaciones (de las cuales una es en suite que tiene cuarto de baño propio con bañera y 2 son dobles) y un cuarto de baño independiente. El piso dispone de un trastero en el edificio. Está equipado con suelos de parquet y calefacción por radiadores. Mantiene elementos originales como molduras en el techo del salón y la carpintería de madera. El edificio tiene ascensor y conserje. El gran tamaño del piso permite numerosas posibilidades de redistribución para adaptar los espacios a las necesidades del futuro comprador. No dudes en contactar con Bcn Advisors para visitar este piso.
158 m²
Plano
15 m²
Terraza
6
Dormitorios
2
Baños
850.000 €











































































































