Obra Nueva
Casas en venta en Sarrià
Espectacular casa de obra nueva con vistas al mar en la zona alta de Barcelona
5.900.000 €
BCN077410010
Espectacular casa de obra nueva con vistas al mar en la zona alta de Barcelona
5.900.000 €
710 m²
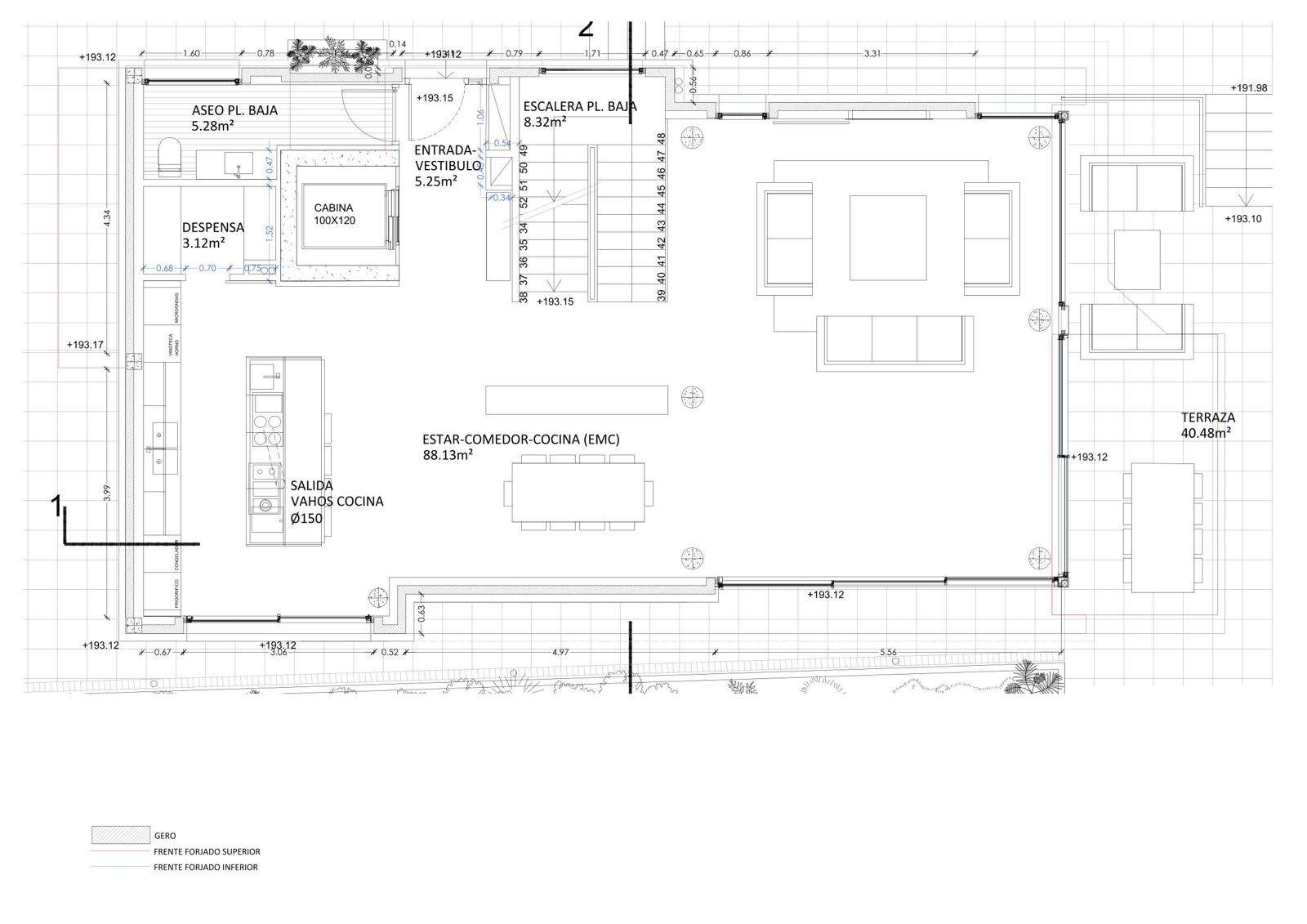
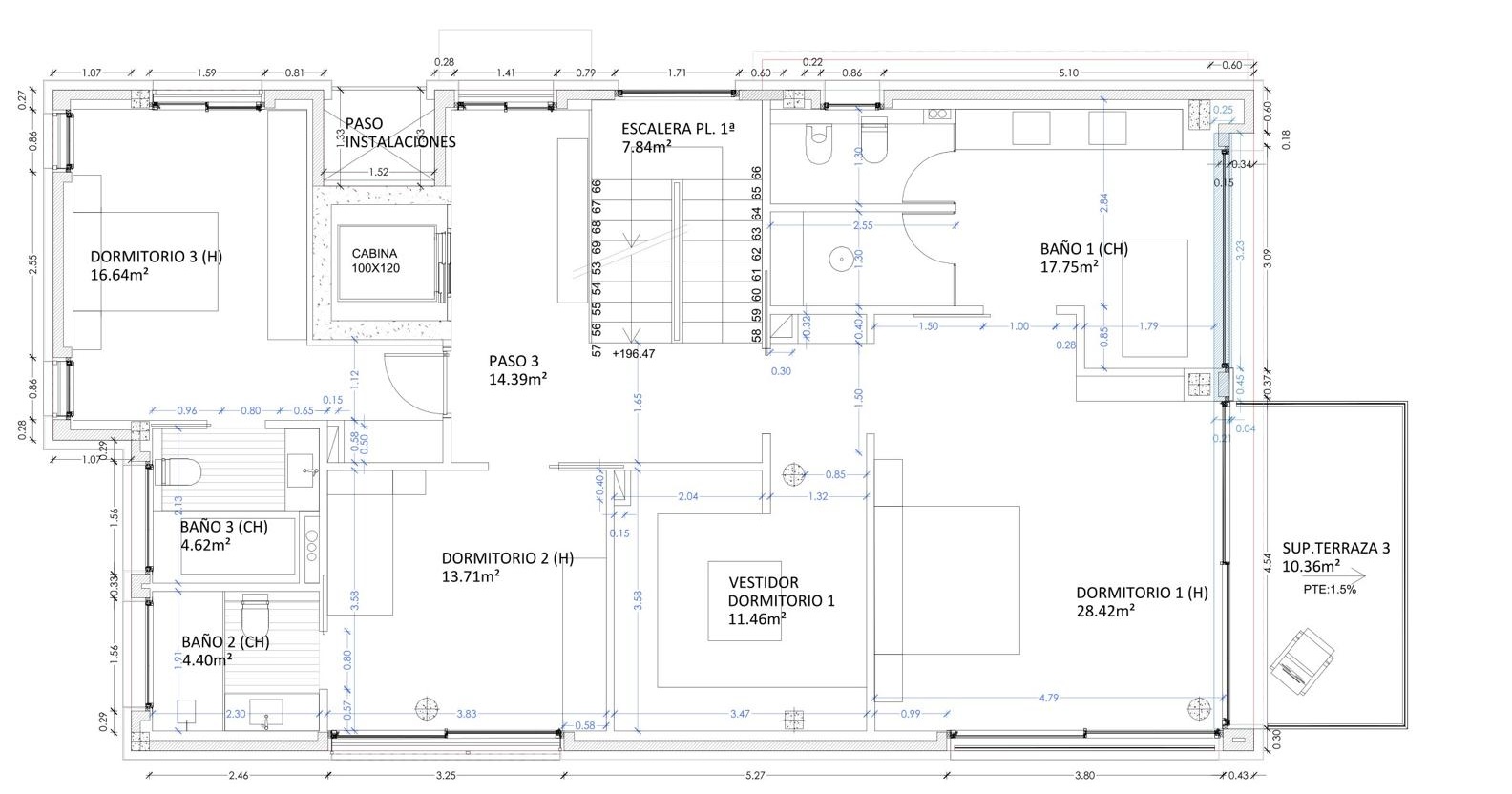
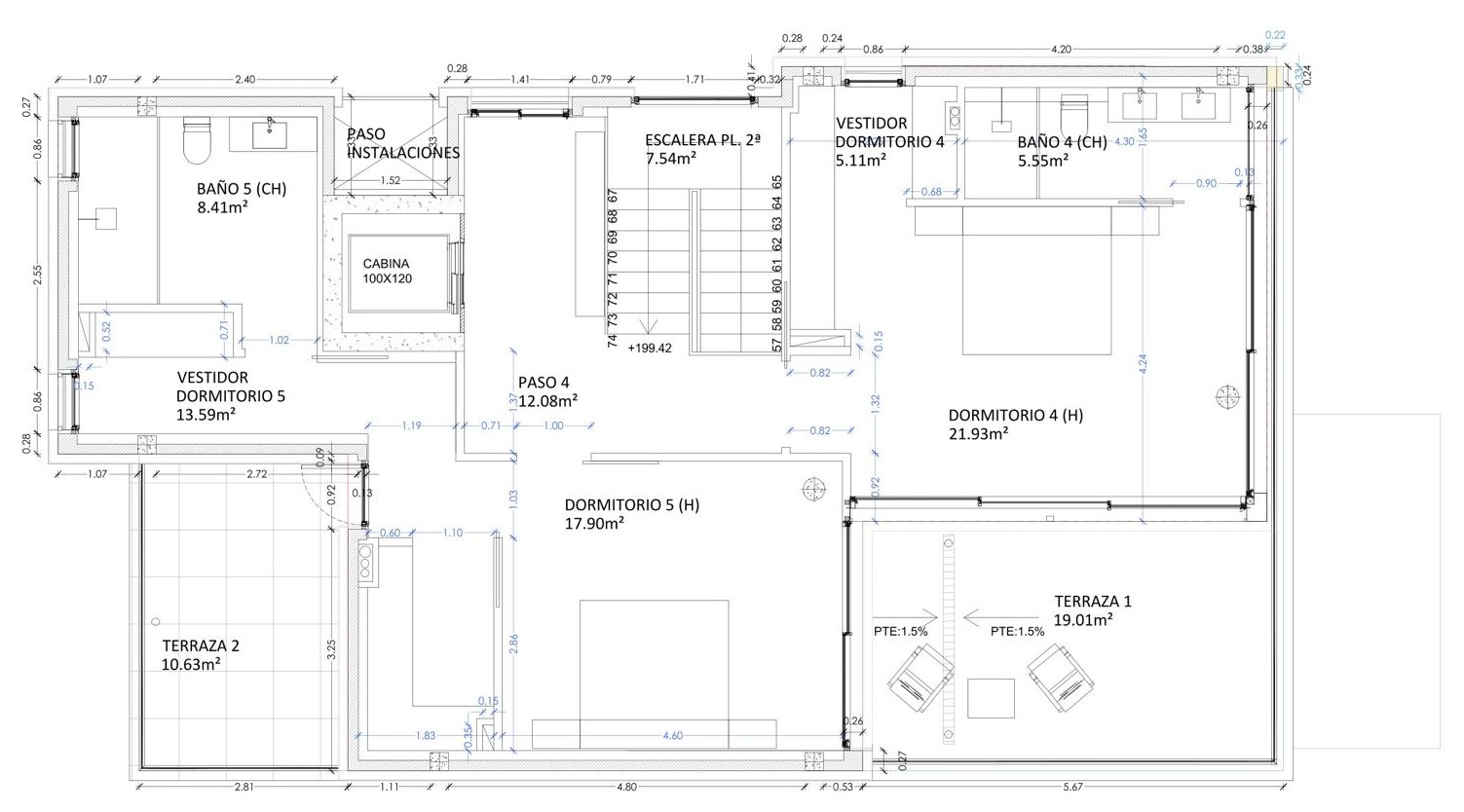
Plano
6
Dormitorios
7
Baños
Extras
Año de construcción: 2025
Obra nueva
Balcón con vistas
Aire acondicionado
Calefacción
Orientación: este, sur, oeste
Clase energética: A
Calificación de emisiones: A
Descripción del inmueble
Esta impresionante casa casa de última generación, construida en 2025 y a estrenar, ofrece impresionantes vistas panorámicas al mar Mediterráneo, a toda la ciudad de Barcelona y a las montañas, visibles desde todas sus plantas.
Diseñada con los más altos estándares de arquitectura contemporánea, esta exclusiva propiedad combina tecnología avanzada, máxima privacidad y un estilo de vida de lujo, en una de las zonas residenciales más privilegiadas de la ciudad.
La vivienda incorpora ascensor interior que conecta cómodamente todos los niveles de la casa. En el exterior, dispone de 6 plazas de aparcamiento privadas a nivel de calle, todas ellas equipadas con cargadores para vehículos eléctricos.
Entre sus espacios más destacados se encuentra una impresionante piscina infinita de agua salada climatizada, perfecta para disfrutar de las vistas abiertas al mar y al skyline de Barcelona durante todo el año. La propiedad también incluye sauna privada, así como una versátil zona de ocio que puede destinarse a sala de cine, gimnasio o sala de fiestas.
La casa cuenta además con habitación independiente para el personal de servicio, garantizando comodidad y funcionalidad en el día a día.
La tecnología es protagonista en toda la vivienda, que está completamente automatizada, con cortinas automáticas, sistemas avanzados de filtración de agua y un completo sistema de seguridad con cámaras y sensores. Para garantizar eficiencia energética, incorpora 16 paneles solares de gran tamaño.
La cocina está equipada con electrodomésticos de alta gama de Miele, y varias estancias cuentan con elegantes chimeneas que aportan confort y calidez al ambiente.
La ubicación es igualmente privilegiada: la propiedad se encuentra muy cerca de prestigiosos colegios internacionales, a solo cinco minutos en coche del centro de Barcelona y a un minuto de las principales autopistas, lo que permite una excelente conexión con toda el área metropolitana y el aeropuerto. Además, a solo un minuto a pie se encuentra un completo centro deportivo y gimnasio.
Una vivienda excepcional para quienes buscan arquitectura contemporánea, tecnología avanzada y vistas incomparables en Barcelona.
Mapa
* Te indicaremos la dirección cuando agendemos la visita.
BCN077410010
5.900.000 €
Casas en venta en Sarrià























































































