Sold
Apartments for sale in Raval
Magnificent renovated flat with modernist features and furnished next to Liceu
495.000 €
BCN075930010
Magnificent renovated flat with modernist features and furnished next to Liceu
495.000 €
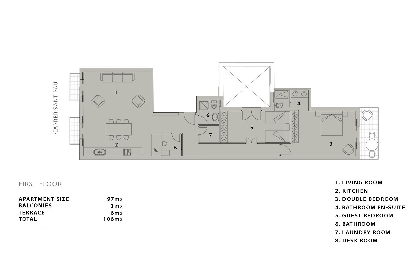
100 m²
Floor plan
6 m²
Terrace
2
Bedrooms
2
Bathrooms
Main features
Extras
Year built: 1890
Refurbished
Balcony with views
Air conditioning
Heating
Furnished
Built-in wardrobes
Orientation: east, north
Energy class: E
Emissions rating: E
Property description
This charming apartment, completely renovated in 2021, stands out for the beauty of its original modernist features, such as the hydraulic floors and mouldings on the high ceilings. It is located in the historic centre of Barcelona, very close to La Rambla, the Gran Teatre del Liceu and the Boqueria Market, ideal for those seeking to combine cosmopolitan life with the charm of history.
The property is in flawless condition, almost brand new. It has 100 built interior sqm and a 6 sqm terrace. It’s on the real second floor of a listed modernist building from 1890 with no lift. The entrance hall leads to the spacious living-dining room of over 30 sqm with an integrated kitchen. It is very bright and has 2 balconies overlooking the street. Next to it there’ss a laundry room with a wine cooler and a small interior room that can be used as a study, dressing room or storage space.
The night area has two double bedrooms. The master bedroom is en suite with its own bathroom and has access to the terrace. It is a perfect place to have breakfast or a drink outdoors and faces the interior courtyard of the buildings. The second bedroom is interior and there is a separate bathroom.
The renovation of this flat is of the highest standard, as it was carried out by an interior design studio using top-quality materials. It is sold with the furniture included in the price and is equipped with parquet flooring combined with hydraulic tiles, ducted hot/cold air conditioning, high-end appliances, an alarm system with cameras, sensors and opening detectors, double-glazed windows and shutters, and an ethanol fireplace in the living room.
Living in this flat means enjoying all the history, nobility and character of Barcelona in the surrounding area, in a very central location less than a 15-minute walk from Plaza Catalunya. You will have numerous shops and services, shopping centres, restaurants, cafés, museums and places of cultural interest at your fingertips, as well as excellent public transport connections to anywhere in the city.
Please do not hesitate to contact Bcn Advisors to visit this apartment.
Map
* We will give you the address when we schedule the visit.
3D View
BCN075930010
495.000 €
Apartments for sale in Raval

This property is located in:
Other properties in Raval
Similar properties that may interest you
Exclusivity
Apartments for sale in Raval
549.000 €
BCN074550018
Charming refurbished flat with original features in the centre of Barcelona
This refurbished flat of 88 built sqm with 2 bedrooms is located in the very centre of Barcelona, on a street parallel to Pelai and a few steps from Plaza Catalunya, La Rambla and Plaza Universitat. It's in a building from the early 19th century with great architectural and historical value, just like the environment in which it is located, close to important spaces of local cultural interest and of international recognition. This property, refurbished in 2019, is on the real third floor and the building has a lift. It stands out for its modern and simple lines with traditional details of its original construction such as high ceilings, wooden beams and large windows, as well as some restored original brick walls. The living-dining room is spacious and bright, with one balcony overlooking the street. The kitchen is open-plan and blends harmoniously into the day area. The night area is composed of a very quiet en-suite bedroom with its own bathroom and an exterior double bedroom with a balcony. Both have large built-in wardrobes. Finally, there's a second full bathroom. The apartment is equipped with microcement flooring in the living room and natural parquet in the bedrooms, air conditioning hot/cold by ducts, central heating and Led lighting system. All the installations are new from the refurbishment. It is also possible to acquire the furniture as an option, not included in the price. The property is surrounded by attractive traditional streets of the area, with many shops, as well as services, shopping centres, leisure areas and restaurants. Its location is privileged due to its proximity to places of interest in the city and its excellent connection by public transport. Do not hesitate to contact Bcn Advisors to visit this apartment.
88 m²
Floor plan
2
Bedrooms
2
Bathrooms
549.000 €
Apartments for sale in Raval
535.000 €
BCN067598701
Amazing and quiet completely refurbished apartment very close to Plaza Catalunya
Great refurbished flat very central, two streets away from Plaza Catalunya and next to Las Ramblas. An enviable location that offers you in the surroundings from the neighbourhood shops to the shopping centres, the boutiques of Paseo de Gracia, all the services, leisure, restaurants and an unbeatable connection by public transport with the rest of Barcelona and the metropolitan area. The property has 116 sqm built surface according to the deed. It's located on the 3rd real floor of a building with only 4 neighbours, one per floor, so it's very quiet. The lift arrives directly to the flat. The refurbishment has preserved the original elements, which is combined with the modernity of the high quality finishings. The living-dining room is bright thanks to the high ceilings of more than 3 metres and has access to 2 balconies, with views to Las Ramblas. The Catalan vaulted ceiling and the beautiful mosaics on the floor, which are combined with the parquet flooring, stand out. The day area leads to the open-plan kitchen, which is elongated and equipped with top brand househould appliances. At the other end of the property we find the night area, made up of 2 double bedrooms and 2 bathrooms. Both bedrooms have access to a sunny terrace of 7 sqm which opens onto an interior courtyard. The beautiful 1910 building also has a communal roof terrace where this flat has a lockable storage room of approximately 5 sqm. The property is equipped with ducted air conditioning and radiators in all the rooms. Do not hesitate to contact Bcn Advisors to request a visit to this apartment.
116 m²
Floor plan
7 m²
Terrace
2
Bedrooms
2
Bathrooms
535.000 €
Apartments for sale in Gòtic
575.000 €
BCN077000010
Renovated high floor apartment with original features in the Gothic Quarter
This exceptional, newly renovated property is located on one of the most peaceful and charming pedestrian streets in the Gothic Quarter, where Mediterranean light, contemporary design and the historical essence of Barcelona combine in perfect harmony. It is just a few minutes from Soho House Barcelona and the seafront, with numerous shops, services and public transport in the surrounding area. Located on the fourth and top floor of a renovated building with no lift, the flat enjoys double orientation, ensuring natural light throughout the day and a remarkable sense of tranquillity. The open views and the presence of two pleasant interior courtyards reinforce the calm and comfort, something unusual in this area of the city. The renovation has been designed with a clear intention: to open up the spaces, enhance the light and create a fluid home, designed for both everyday use and sharing moments with guests, without sacrificing privacy. The heart of the home is an open-plan space that integrates the living room, dining room and kitchen, ideal for long after-dinner conversations, spontaneous gatherings and an active social life. The microcement floors, combined with original reclaimed mosaics, add character and personality, maintaining a sober and timeless aesthetic. The kitchen is fully equipped with appliances, including a wine refrigerator. The flat currently has one bright and cosy bedroom with built-in wardrobes and custom-designed furniture, as well as a unique porthole window that visually connects with the living area and enhances the feeling of spaciousness. There is the option of creating a second bedroom (see second floor plan with the proposal). The property is sold furnished. It preserves and enhances original features such as exposed beams, woodwork and hydraulic tiles, which dialogue with an elegant and balanced contemporary style. The recessed lighting, the selection of high-quality materials and the attention to detail reflect a careful and coherent renovation. A property designed for those who want to experience the pulse of the city and, at the same time, come home to light, silence and beauty. For those who value well-designed spaces, quality materials and the possibility of enjoying their home with friends, without sacrificing tranquillity or privacy.
93 m²
Floor plan
1.8 m²
Terrace
1
Bedrooms
1
Bathrooms
575.000 €
New Listing
Apartments for sale in El Born
565.000 €
BCN077570010
Amazing and spacious refurbished apartment in a historic building in El Born
This property is the perfect blend of historic charm and modern comfort. Set in a late 19th-century building, its contemporary refurbishment combines functionality with the beauty of original features such as high ceilings, exposed beams and brickwork details on the walls. It enjoys a wonderful location on one of the quietest streets in the El Born neighbourhood, next to the Basilica of Santa Maria del Mar and the Pla de Palau. The flat has 116 m² of internal floor space and 2 balconies, which, together with large windows, allow plenty of natural light to flood in. The living-dining room with open-plan kitchen and central island is very spacious and corner-facing, with 3 large windows and a balcony. The high ceilings create a wonderful sense of space. The kitchen is fitted with appliances. The sleeping area comprises 3 external bedrooms. The master double bedroom has an en-suite bathroom. Adjacent to it, accessible from the living room, is a medium-sized bedroom. At the other end of the flat is a single bedroom with a balcony, which could also be used as a study. Finally, there is a separate bathroom. The apartment is fitted with ducted hot/cold air conditioning and has been refurbished. It is on the second floor of a building without a lift. Located in the heart of El Born, this flat offers a unique opportunity to live in one of Barcelona’s most iconic neighbourhoods. Surrounded by charming streets, history and a vibrant cultural life, you will enjoy a wide range of restaurants, shops and artistic venues. Its excellent public transport links and proximity to the sea make it an ideal place both to live and to invest, combining an urban lifestyle with a Mediterranean flair. Please do not hesitate to contact Bcn Advisors to view this property.
116 m²
Floor plan
1 m²
Terrace
3
Bedrooms
2
Bathrooms
565.000 €
Exclusivity
Lofts for sale in Poble Sec
420.000 €
BCN055270011
Spectacular New York–style loft in Poble Sec with high ceilings and two patios
In the heart of Poble Sec, we find this spectacular New York–style loft at street level, a truly unique space full of character that offers endless possibilities for customization. The property is sold in need of renovation and includes all the necessary licenses already approved to start work immediately, allowing the buyer to design and transform the space without delays. The loft is also available fully renovated for a price of €580,000. With a built surface of 114.91 m², a cozy mezzanine of 10 m², and two outdoor patios — one lateral (5.66 m²) and one at the rear (11.81 m²) —, this loft stands out for its high ceilings, abundant natural light, and excellent distribution potential. The project allows for the creation of three to four bedrooms along with two full bathrooms, adapting perfectly to the needs of anyone looking for a distinctive home. It also has a valid certificate of occupancy, with the rear part designated for residential use and the front part retaining its commercial use, adding even more versatility to the space. This is a very special opportunity in Poble Sec, where it is increasingly difficult to find properties with a certificate of occupancy and such attractive renovation potential. Ideal for those who dream of living in a one-of-a-kind loft with industrial charm, ready to be transformed into an exclusive residence in the heart of Barcelona. * The images correspond to possible renovation proposals.
114.91 m²
Floor plan
17.47 m²
Terrace
4
Bedrooms
2
Bathrooms
420.000 €
Sold
Apartments for sale in Gòtic
465.000 €
BCN063688792
Charming 2 bedroom flat in the heart of Barcelona’s historic centre
This wonderful 105 built sqm apartment (109 sqm according to Cadastre including common elements) with 2 bedrooms is located in the historic centre of Barcelona, very close to La Rambla and the Boqueria Market. The area invites to live the most traditional and attractive Barcelona, with many services and shops in the surroundings and an excellent offer of public transport. The living room is very bright, has a balcony overlooking the street and features exquisite details such as a Roman wall and a Catalan vaulted ceiling. The spacious kitchen is open-plan but occupies a separate space, and is equipped with electrical appliances. The property has 2 bedrooms: one en-suite with its own bathroom and a medium sized one. In addition, there's a separate bathroom. The floors are natural parquet and it has air conditioning hot/cold by splits. The flat is on the real second floor and the building has a lift. Do not hesitate to contact Bcn Advisors to request a visit to this property.
105 m²
Floor plan
1 m²
Terrace
2
Bedrooms
2
Bathrooms
465.000 €



































































































