Exclusivity
Penthouses for sale in Gòtic
Amazing penthouse with original features in the centre of Barcelona
450.000 €
BCN076450010
Amazing penthouse with original features in the centre of Barcelona
450.000 €
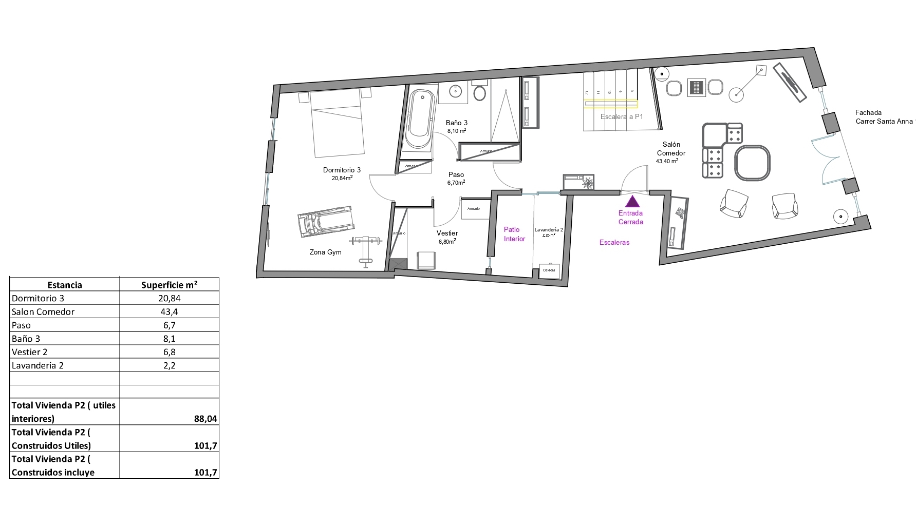
101.7 m²
Floor plan
2
Bedrooms
2
Bathrooms
Extras
Year built: 1710
Update required
Air conditioning
Heating
Property description
This penthouse is just one street away from Plaza Catalunya, right in the heart of Barcelona. It’s located in a historic building dating back to the early 18th century. Its privileged location allows you to enjoy the history of Barcelona’s iconic streets and monuments, numerous shops and services, bars, restaurants and excellent public transport links.
The property has 101 built interior sqm. The living room is very cosy with views of the street and a gallery overlooking the building’s interior courtyard. Then there is a hallway with built-in wardrobes that leads to the master bedroom, with views of an interior block courtyard and plenty of natural light. On either side of the hallway there is a bathroom with a bath and shower and a room used as a dressing room with more wardrobes. However, there is the possibility of creating two bedrooms and two bathrooms (see renovation proposals in the plans).
This property retains original features, such as 18th-century wooden ceilings combined with skylights that allow natural light to enter. The property is equipped with wooden floors, radiator heating and split air conditioning. It’s on the real 3rd floor of a building without a lift.
Currently, this property is part of a duplex consisting of two separate registered entities. At the time of formalising the sale, the owners will carry out the corresponding division so that each unit is correctly independent.
Do not hesitate to contact Bcn Advisors to request a viewing of this duplex.
Map
* We will give you the address when we schedule the visit.
BCN076450010
450.000 €
Penthouses for sale in Gòtic

This property is located in:
Other properties in Gòtic
Similar properties that may interest you
Reduced Price
Apartments for sale in Gòtic
535.000 €
BCN077000010
Renovated high floor apartment with original features in the Gothic Quarter
This exceptional, newly renovated property is located on one of the most peaceful and charming pedestrian streets in the Gothic Quarter, where Mediterranean light, contemporary design and the historical essence of Barcelona combine in perfect harmony. It is just a few minutes from Soho House Barcelona and the seafront, with numerous shops, services and public transport in the surrounding area. Located on the fourth and top floor of a renovated building with no lift, the flat enjoys double orientation, ensuring natural light throughout the day and a remarkable sense of tranquillity. The open views and the presence of two pleasant interior courtyards reinforce the calm and comfort, something unusual in this area of the city. The renovation has been designed with a clear intention: to open up the spaces, enhance the light and create a fluid home, designed for both everyday use and sharing moments with guests, without sacrificing privacy. The heart of the home is an open-plan space that integrates the living room, dining room and kitchen, ideal for long after-dinner conversations, spontaneous gatherings and an active social life. The microcement floors, combined with original reclaimed mosaics, add character and personality, maintaining a sober and timeless aesthetic. The kitchen is fully equipped with appliances, including a wine refrigerator. The flat currently has one bright and cosy bedroom with built-in wardrobes and custom-designed furniture, as well as a unique porthole window that visually connects with the living area and enhances the feeling of spaciousness. There is the option of creating a second bedroom (see second floor plan with the proposal). The property is sold furnished. It preserves and enhances original features such as exposed beams, woodwork and hydraulic tiles, which dialogue with an elegant and balanced contemporary style. The recessed lighting, the selection of high-quality materials and the attention to detail reflect a careful and coherent renovation. A property designed for those who want to experience the pulse of the city and, at the same time, come home to light, silence and beauty. For those who value well-designed spaces, quality materials and the possibility of enjoying their home with friends, without sacrificing tranquillity or privacy.
93 m²
Floor plan
1.8 m²
Terrace
1
Bedrooms
1
Bathrooms
535.000 €
Exclusivity
Apartments for sale in Gòtic
495.000 €
BCN075690010
Splendid and bright apartment with original features in the Gothic Quarter
This beautiful flat maintains the charm of its original features such as the very high ceilings with restored Catalan vault with wooden beams and exposed brick walls. It's located in the heart of the historic centre of Barcelona, surrounded by its historic streets and squares, close to Plaza Real and Paseo Colón. The property has 110 built sqm and is on the first floor. The living-dining room is spacious and overlooks a large square, which provides a wonderful open view and plenty of natural light. It also has a balcony. The kitchen is semi-open and is equipped with household appliances. The night area has 2 double bedrooms that open onto large lightwells, so they are very quiet. There is also a bathroom with two sinks and a bathtub. This flat was refurbished about 10 years ago, restoring the ceilings and the brickwork on the walls. It has parquet floors and heating by gas radiators. The building has an approved plan for the installation of a lift, the costs of which will be borne by the current owner. This apartment is an excellent investment opportunity, as it rents for around 1.500 €/month. As well as to live in a historic environment in Barcelona with all the services and shops in the surroundings, with proximity to the city centre and excellently connected by public transport. Do not hesitate to contact Bcn Advisors to visit this flat.
110 m²
Floor plan
1 m²
Terrace
2
Bedrooms
1
Bathrooms
495.000 €
Apartments for sale in Raval
535.000 €
BCN067598701
Amazing and quiet completely refurbished apartment very close to Plaza Catalunya
Great refurbished flat very central, two streets away from Plaza Catalunya and next to Las Ramblas. An enviable location that offers you in the surroundings from the neighbourhood shops to the shopping centres, the boutiques of Paseo de Gracia, all the services, leisure, restaurants and an unbeatable connection by public transport with the rest of Barcelona and the metropolitan area. The property has 116 sqm built surface according to the deed. It's located on the 3rd real floor of a building with only 4 neighbours, one per floor, so it's very quiet. The lift arrives directly to the flat. The refurbishment has preserved the original elements, which is combined with the modernity of the high quality finishings. The living-dining room is bright thanks to the high ceilings of more than 3 metres and has access to 2 balconies, with views to Las Ramblas. The Catalan vaulted ceiling and the beautiful mosaics on the floor, which are combined with the parquet flooring, stand out. The day area leads to the open-plan kitchen, which is elongated and equipped with top brand househould appliances. At the other end of the property we find the night area, made up of 2 double bedrooms and 2 bathrooms. Both bedrooms have access to a sunny terrace of 7 sqm which opens onto an interior courtyard. The beautiful 1910 building also has a communal roof terrace where this flat has a lockable storage room of approximately 5 sqm. The property is equipped with ducted air conditioning and radiators in all the rooms. Do not hesitate to contact Bcn Advisors to request a visit to this apartment.
116 m²
Floor plan
7 m²
Terrace
2
Bedrooms
2
Bathrooms
535.000 €
Sold
Apartments for sale in Raval
495.000 €
BCN075930010
Magnificent renovated flat with modernist features and furnished next to Liceu
This charming apartment, completely renovated in 2021, stands out for the beauty of its original modernist features, such as the hydraulic floors and mouldings on the high ceilings. It is located in the historic centre of Barcelona, very close to La Rambla, the Gran Teatre del Liceu and the Boqueria Market, ideal for those seeking to combine cosmopolitan life with the charm of history. The property is in flawless condition, almost brand new. It has 100 built interior sqm and a 6 sqm terrace. It's on the real second floor of a listed modernist building from 1890 with no lift. The entrance hall leads to the spacious living-dining room of over 30 sqm with an integrated kitchen. It is very bright and has 2 balconies overlooking the street. Next to it there'ss a laundry room with a wine cooler and a small interior room that can be used as a study, dressing room or storage space. The night area has two double bedrooms. The master bedroom is en suite with its own bathroom and has access to the terrace. It is a perfect place to have breakfast or a drink outdoors and faces the interior courtyard of the buildings. The second bedroom is interior and there is a separate bathroom. The renovation of this flat is of the highest standard, as it was carried out by an interior design studio using top-quality materials. It is sold with the furniture included in the price and is equipped with parquet flooring combined with hydraulic tiles, ducted hot/cold air conditioning, high-end appliances, an alarm system with cameras, sensors and opening detectors, double-glazed windows and shutters, and an ethanol fireplace in the living room. Living in this flat means enjoying all the history, nobility and character of Barcelona in the surrounding area, in a very central location less than a 15-minute walk from Plaza Catalunya. You will have numerous shops and services, shopping centres, restaurants, cafés, museums and places of cultural interest at your fingertips, as well as excellent public transport connections to anywhere in the city. Please do not hesitate to contact Bcn Advisors to visit this apartment.
100 m²
Floor plan
6 m²
Terrace
2
Bedrooms
2
Bathrooms
495.000 €
Exclusivity
Lofts for sale in Poble Sec
420.000 €
BCN055270011
Spectacular New York–style loft in Poble Sec with high ceilings and two patios
In the heart of Poble Sec, we find this spectacular New York–style loft at street level, a truly unique space full of character that offers endless possibilities for customization. The property is sold in need of renovation and includes all the necessary licenses already approved to start work immediately, allowing the buyer to design and transform the space without delays. The loft is also available fully renovated for a price of €580,000. With a built surface of 114.91 m², a cozy mezzanine of 10 m², and two outdoor patios — one lateral (5.66 m²) and one at the rear (11.81 m²) —, this loft stands out for its high ceilings, abundant natural light, and excellent distribution potential. The project allows for the creation of three to four bedrooms along with two full bathrooms, adapting perfectly to the needs of anyone looking for a distinctive home. It also has a valid certificate of occupancy, with the rear part designated for residential use and the front part retaining its commercial use, adding even more versatility to the space. This is a very special opportunity in Poble Sec, where it is increasingly difficult to find properties with a certificate of occupancy and such attractive renovation potential. Ideal for those who dream of living in a one-of-a-kind loft with industrial charm, ready to be transformed into an exclusive residence in the heart of Barcelona. * The images correspond to possible renovation proposals.
114.91 m²
Floor plan
17.47 m²
Terrace
4
Bedrooms
2
Bathrooms
420.000 €
Apartments for sale in La Dreta
460.000 €
BCN076870010
Unique newly renovated and furnished property in Eixample
This magnificent, recently renovated apartment stands out for its ability to seamlessly blend timeless architectural details with a carefully considered contemporary design. It is located near Passieg Sant Joan and La Sagrada Família, an excellent location in Eixample. The layout is comfortable and functional. The living room with open-plan kitchen creates a special atmosphere thanks to the high ceilings. It has two bedrooms: a master suite with en-suite bathroom and built-in wardrobe, and a second single bedroom next to an additional full bathroom. The property also features a cosy loft that can be converted into a versatile space, perfect as a work area, reading corner or extra storage area. The finishings stand out for their quality and character. The mosaic and microcement flooring, exposed stone walls and original wooden beams create a warm, authentic atmosphere full of personality. The flat is equipped with a centralised hot/cold air conditioning system that ensures maximum comfort throughout the year. The flat is on the ground floor of the building and has three doors that guarantee excellent sound insulation and provide a superior sense of security. The main door also allows natural light to enter without compromising the privacy of the interior. Spacious, unique and completely new, the property is delivered fully furnished and equipped, ready to move into. Its location in one of the most prestigious and sought-after areas of Barcelona, with all the services, shops and public transport options you need just a few steps away, adds unquestionable value to this property that combines design, comfort and unrivalled architectural charm. Do not hesitate to contact Bcn Advisors to visit this property.
85.11 m²
Floor plan
2
Bedrooms
2
Bathrooms
460.000 €

























































































