Vendido
Pisos en venta en Gòtic
Encantador piso de 2 habitaciones en pleno centro histórico de Barcelona
465.000 €
BCN063688792
Encantador piso de 2 habitaciones en pleno centro histórico de Barcelona
465.000 €
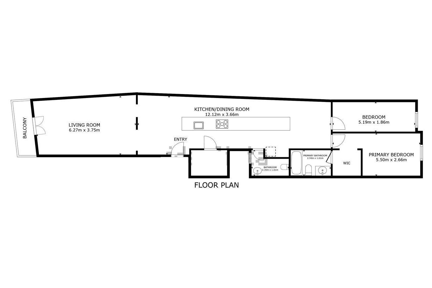
105 m²
Plano
1 m²
Terraza
2
Dormitorios
2
Baños
Principales características
Extras
Año de construcción: 1900
Reformado
Aire acondicionado
Calefacción
Orientación: sur, oeste
Clase energética: D
Calificación de emisiones: D
Descripción del inmueble
Este maravilloso piso de 105 m2 construidos (109 m2 según Catastro incluyendo elementos comunes) con 2 habitaciones se encuentra en pleno centro histórico de Barcelona, muy cerca de La Rambla y el Mercado de la Boqueria. La zona invita a vivir la Barcelona más tradicional y atractiva, con muchos servicios y comercios en los alrededores y una excelente oferta de transporte público.
El salón es muy luminoso, dispone de un balcón que da la calle y presenta detalles exquisitos como pared romana y techo de volta catalana. La amplia cocina es abierta pero ocupa un espacio diferenciado, y está equipada con electrodomésticos.
La propiedad cuenta con 2 habitaciones: una en suite con cuarto de baño propio y otra mediana. Además, hay otro cuarto de baño independiente. Los suelos son de parquet natural y dispone de aire acondicionado frío/calor por splits.
El piso está en la segunda planta real y el edificio tiene ascensor.
No dudes en contactar con Bcn Advisors para solicitar una visita a esta vivienda.
Mapa
* Te indicaremos la dirección cuando agendemos la visita.
Vista 3D
BCN063688792
465.000 €
Pisos en venta en Gòtic

Este inmueble se encuentra en:
Otros inmuebles en Gòtic
Inmuebles similares que te pueden interesar
Vendido
Lofts en venta en Poble Nou
549.000 €
BCN075900010
Sensacional y luminoso loft de estilo industrial en Poblenou
Este maravilloso loft está situado en una antigua fábrica de harina totalmente restaurada como complejo de viviendas, uniendo a la perfección el toque histórico y tradicional de Barcelona con los elementos de una nueva construcción. Se trata de un entorno y un estilo de vida únicos con reminiscencias a los típicos lofts de Nueva York, pero con todas las ventajas de vivir en la mejor ciudad mediterránea de Europa. La propiedad se sitúa en la tercera planta y es totalmente exterior, por lo que es tremendamente luminosa con una espectacular vista abierta hacia la Sagrada Familia y las montañas; y también muy tranquila, ya que da a un pasaje. Su estado de conservación es perfecto, casi a estrenar. El corazón del loft es su amplia zona de día, que integra salón-comedor y cocina en un espacio diáfano con 2 grandes ventanales. La habitación tien otro ventanal y queda cerrada como espacio privado con paredes que no llegan al techo, lo cual mantiene la circulación de luz natural pero nos da separación visual e intimidad. También hay un cuarto de baño completo con ducha. Además, se podría crear una segunda habitación cerrando una parte del salón. Por último, el loft dispone de un espacio cerrado tipo trastero, ideal para almacenar los enseres del día a día. El loft mantiene elementos originales como los techos muy altos con volta catalana restaurada y la carpintería, que mantiene la estética industrial de la fábrica. Está equipado con suelos de parquet y aire acondicionado con bomba de calor con conductos a la vista, de estilo industrial. El edificio tiene ascensor, terraza comunitaria y parking, en el que es fácil encontrar plazas en venta y en alquiler. Este loft se encuentra en la antigua fábrica de harina La Fama, de finales del siglo XIX. El recinto se caracterizaba por grandes estructuras con pilares de hierro colado y muros de cerámica con ladrillo visto y grandes aperturas, creando a su vez creaban patios y pasajes interiores. Actualmente se mantienen la torre de fabricación de harina y la chimenea adosada originales. Vivir en este loft es sinónimo de disfrutar de uno de los entornos más eclécticos de Barcelona, el Poblenou, que ha mantenido su carácter tradicional uniendo el desarrollo tecnológico con el distrito 22@, sede de varias empresas punteras. Los alrededores disponen de numerosos comercios y servicios, opciones de transporte público y la playa del Bogatell y la gran zona verde del Parque del Poblenou a pocos pasos. No dudes en contactar con Bcn Advisors para visitar este loft.
88 m²
Plano
1
Dormitorios
1
Baños
549.000 €
Pisos en venta en Raval
535.000 €
BCN067598701
Sensacional y tranquilo piso reformado muy cerca de Plaza Catalunya
Estupendo piso reformado muy céntrico, a dos calles de Plaza Catalunya y al lado de Las Ramblas. Una ubicación envidiable que te ofrece en los alrededores desde las tiendas de barrio hasta los centros comerciales, las boutiques de Paseo de Gracia, todos los servicios, ocio, restauración y una inmejorable conexión mediante transporte público con el resto de Barcelona y el área metropolitana. La vivienda tiene 116 m2 construidos según escrituras. Se encuentra en la tercera planta real de un edificio con tan solo 4 vecinos, uno por planta, por lo que es muy tranquilo. El ascensor llega directamente al piso. La reforma ha conservado los elementos originales, que se une a la modernidad de los acabados de alta calidad. El salón-comedor es luminoso gracias a los techos altos de más de 3 metros y tiene acceso a 2 balcones, con vistas a Las Ramblas. Destacan el techo con bóveda catalana y los preciosos mosaicos del suelo, que se combinan con el parquet. La zona de día da paso a la cocina abierta, que es alargada y está equipada con electrodomésticos de primeras marcas. En el otro extremo del piso encontramos la zona de noche, formada por 2 habitaciones dobles y 2 cuartos de baño. Las 2 habitaciones tienen salida a una soleada terraza de 7 m2 que da a un patio interior. El precioso edificio de 1910 dispone además de un terrado comunitario en el que este piso dispone de un trastero con llave de aproximadamente 5 m2. El piso está equipado con aire acondicionado por conductos y radiadores en todas las estancias. No dudes en contactar con Bcn Advisors para solicitar una visita a este piso. * El precio indicado no incluye impuestos (ITP en viviendas de segunda mano o IVA más AJD si procede en viviendas de obra nueva), ni los gastos de notaría, registro de la propiedad, gestoría ni ningún otro gasto derivado de la operación que, conforme a la normativa vigente, correspondan al comprador. Los honorarios de intermediación inmobiliaria serán asumidos por la parte vendedora, según el encargo suscrito.
116 m²
Plano
7 m²
Terraza
2
Dormitorios
2
Baños
535.000 €
Vendido
Pisos en venta en Raval
495.000 €
BCN075930010
Magnífico piso reformado con elementos modernistas y amueblado al lado del Liceu
Este encantador piso totalmente reformado en 2021 destaca por la belleza de sus elementos originales modernistas como los suelos hidráulicos y las molduras en los techos altos. Se sitúa en el casco histórico de Barcelona, muy cerca de La Rambla, el Gran Teatre del Liceu y el Mercado de la Boqueria, ideal para quienes buscan unir la vida cosmopolita con el encanto de la historia. La vivienda está en estado impecable, casi a estrenar. Tiene 100 m2 construidos interiores y una terraza de 6 m2. Está en la 2ª planta real de una finca modernista catalogada de 1890 sin ascensor. El recibidor nos conduce al amplio salón-comedor de más de 30 m2 con cocina integrada. Es muy luminoso y tiene 2 balcones que dan a la calle. A su lado hay un lavadero con vinoteca y un pequeño cuarto interior que se puede utilizar como estudio, vestidor o espacio de almacenaje. La zona de noche dispone de dos habitaciones dobles. El dormitorio principal es en suite con cuarto de baño propio y tiene acceso a la terraza. Es un lugar perfecto para desayunar o tomar algo al aire libre y está orientado hacia el patio interior de edificios. El segundo dormitorio es interior y hay un cuarto de baño independiente. La reforma de este piso es de primer nivel, ya que fue realizada un estudio de interiorismo con materiales de primera calidad. Se vende con los muebles incluidos en el precio y está equipado con suelos de parquet que se combinan con los suelos hidráulicos, aire acondicionado frío/calor por conductos, electrodomésticos de alta gama, sistema de alarma con cámaras, sensores y detectores de apertura, ventanas con cristales dobles y contraventanas, y una chimenea de etanol en el salón. Vivir en este piso significa disfrutar de toda la historia, la nobleza y el carácter de Barcelona en los alrededores, en una ubicación muy céntrica a menos de 15 minutos andando de Plaza Catalunya. Tendrás a tu alcance numerosos comercios y servicios, centros comerciales, restaurantes, cafés, museos y lugares de interés cultural y una excelente conexión mediante transporte público con cualquier punto de la ciudad. No dudes en contactar con Bcn Advisors para visitar este piso.
100 m²
Plano
6 m²
Terraza
2
Dormitorios
2
Baños
495.000 €
En exclusiva
Pisos en venta en Gòtic
495.000 €
BCN075690010
Espléndido y luminoso piso con elementos originales en el Barrio Gótico
Este precioso piso mantiene el encanto de sus elementos originales como los techos muy altos con volta catalana restaurada con vigas de madera y ladrillo visto en las paredes. Se sitúa en el corazón del casco histórico de Barcelona, rodeado de sus calles y plazas históricas, cerca de la Plaza Real y del Paseo Colón. El piso tiene 110 m2 y está en la primera planta. El salón-comedor es amplio y da a una amplia plaza, lo que aporta una maravillosa vista abierta y muchísima luz natural. Además, tiene un balcón. La cocina es semiabierta y está equipada con electrodomésticos. La zona de noche tiene 2 habitaciones dobles que dan a amplios patios de luces, por lo que son muy tranquilas. Además, hay un cuarto de baño con dos lavamanos y bañera. Este piso se reformó hace unos 10 años, restaurando los techos y la obra vista del ladrillo de las paredes. Dispone de suelos de parquet y calefacción por radiadores de gas natural. El edificio tiene proyecto aprobado para la instalación del ascensor, cuyos gastos asumirá el actual propietario. Esta vivienda es una excelente oportunidad de inversión, ya que se alquila en torno a 1.500 €/mes. Así como para vivir en un entorno histórico en Barcelona con todos los servicios y comercios en los alrededores, con proximidad al centro de la ciudad y excelentemente conectado mediante transporte público. No dudes en contactar con Bcn Advisors para visitar este piso. * El precio indicado no incluye impuestos (ITP en viviendas de segunda mano o IVA más AJD si procede en viviendas de obra nueva), ni los gastos de notaría, registro de la propiedad, gestoría ni ningún otro gasto derivado de la operación que, conforme a la normativa vigente, correspondan al comprador. Los honorarios de intermediación inmobiliaria serán asumidos por la parte vendedora, según el encargo suscrito.
110 m²
Plano
1 m²
Terraza
2
Dormitorios
1
Baños
495.000 €
Precio Reducido
Pisos en venta en El Born
550.000 €
BCN077570010
Sensacional y amplio piso reformado en finca histórica en El Born
Esta vivienda es la fusión perfecta entre el encanto histórico y el confort actual. Situada en un edificio de finales del siglo XIX, su reforma contemporánea une la funcionalidad con la belleza de los elementos originales como los techos altos, las vigas expuestas y detalles de ladrillo en las paredes. Su ubicación es maravillosa en una de las calles más discretas del barrio de El Born, al lado de la Basílica de Santa Maria del Mar y del Pla de Palau. El piso tiene 116 m2 construidos interiores y dos balcones, que junto a amplios ventanales facilitan la entrada de luz natural. El salón-comedor con cocina abierta e isla central es muy amplio y es esquinero, con 3 ventanales y un balcón. Los techos altos crean una sensación de amplitud maravillosa. La cocina está equipada con electrodomésticos. La zona de noche tiene 3 dormitorios exteriores. El dormitorio doble principal tiene cuarto de baño en suite. A su lado, accesible desde el salón, hay una habitación mediana. En el otro extremo del piso hay un dormitorio individual con un balcón, que también puede ser usado como despacho. Por último, hay un cuarto de baño independiente. El piso está equipado con aire acondicionado frío/calor por conductos e instalaciones renovadas. Está en la segunda planta real de un edificio sin ascensor. Ubicado en el corazón del Born, este piso ofrece una oportunidad única de vivir en uno de los barrios más emblemáticos de Barcelona. Rodeado de calles con encanto, historia y una vibrante vida cultural, disfrutarás de una amplia oferta de restaurantes, tiendas y espacios artísticos. Su excelente conexión con el transporte público y su proximidad al mar lo convierten en un lugar ideal tanto para vivir como para invertir, combinando estilo de vida urbano con esencia mediterránea. No dudes en contactar con Bcn Advisors para visitar este piso. * El precio indicado no incluye impuestos (ITP en viviendas de segunda mano o IVA más AJD si procede en viviendas de obra nueva), ni los gastos de notaría, registro de la propiedad, gestoría ni ningún otro gasto derivado de la operación que, conforme a la normativa vigente, correspondan al comprador. Los honorarios de intermediación inmobiliaria serán asumidos por la parte vendedora, según el encargo suscrito.
116 m²
Plano
1 m²
Terraza
3
Dormitorios
2
Baños
550.000 €
Pisos en venta en La Dreta
460.000 €
BCN076870010
Singular vivienda reformada a estrenar y amueblada en Eixample
Este magnífico piso, recientemente renovado, destaca por su capacidad para fusionar de forma impecable los detalles arquitectónicos más atemporales con un diseño contemporáneo cuidadosamente estudiado. Se sitúa cerca del Passeig Sant Joan y de La Sagrada Família, una excelente localización en el Eixample. La distribución es cómoda y funcional. El salón con cocina abierta crea un ambiente especial gracias a los techos altos. Dispone de 2 dormitorios: una suite principal con baño propio y armario integrado, y un segundo dormitorio individual junto a un baño completo adicional. La propiedad incorpora también un acogedor altillo que se convierte en un espacio versátil, perfecto como zona de trabajo, rincón de lectura o área de almacenamiento extra. Los acabados destacan por su calidad y carácter. El suelo de mosaico y de microcemento, las paredes de piedra vista y las vigas de madera originales crean una atmósfera cálida, auténtica y llena de personalidad. El piso está equipado con un sistema de aire acondicionado centralizado frío/calor que asegura el máximo confort a lo largo de todo el año. El piso está en la planta baja del edifcio y cuenta con 3 puertas que garantizan un excelente aislamiento acústico y aportan una sensación superior de seguridad. La puerta principal, además, permite la entrada de luz natural sin comprometer en ningún momento la privacidad del interior. Amplia, única y completamente nueva, la vivienda se entrega totalmente amueblada y equipada, lista para entrar a vivir. Su ubicación en una de las zonas más prestigiosas y demandadas de Barcelona, con todos los servicios, comercios y opciones de transporte público que necesitas a pocos pasos, añade un valor incuestionable a esta propiedad que combina diseño, confort y un encanto arquitectónico inigualable. No dudes en contactar con Bcn Advisors para visitar este piso. * El precio indicado no incluye impuestos (ITP en viviendas de segunda mano o IVA más AJD si procede en viviendas de obra nueva), ni los gastos de notaría, registro de la propiedad, gestoría ni ningún otro gasto derivado de la operación que, conforme a la normativa vigente, correspondan al comprador. Los honorarios de intermediación inmobiliaria serán asumidos por la parte vendedora, según el encargo suscrito.
85.11 m²
Plano
2
Dormitorios
2
Baños
460.000 €






































































































