Appartements à vendre à La Dreta
Majestueux appartement rénové avec des éléments originaux au coeur du Eixample
1.330.000 €
BCN074660055
Majestueux appartement rénové avec des éléments originaux au coeur du Eixample
1.330.000 €
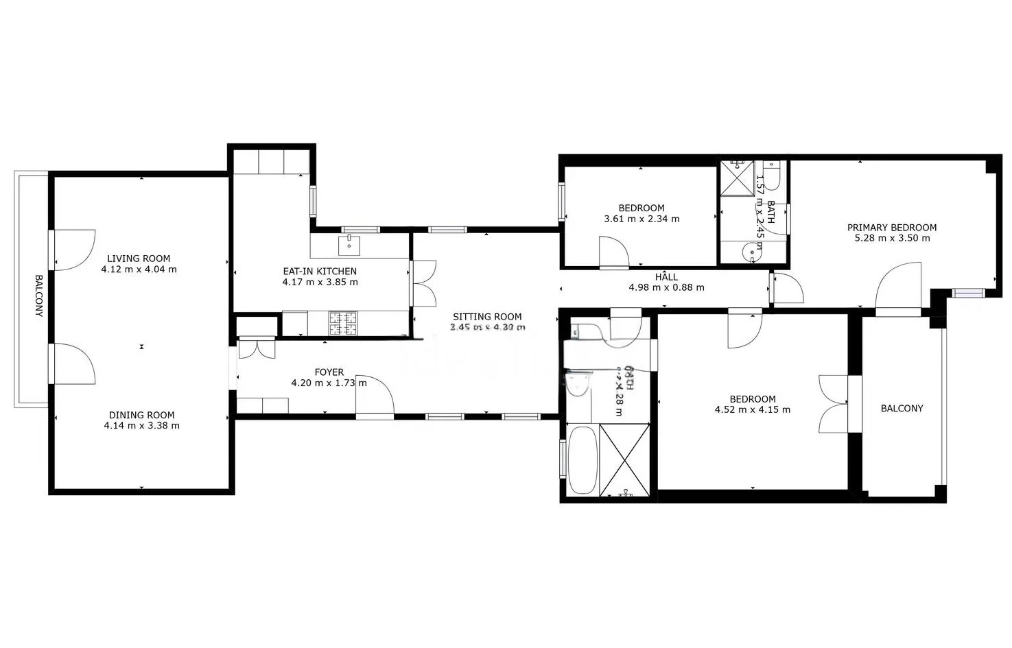
162 m²
Plan d'étage
10 m²
Terrasse
3
Chambres
2
Salles de bains
Extras
Année de construction : 1925
Rénové
Balcon avec vue
Climatisation
Chauffage
Orientation : nord, ouest
Classe énergétique : E
Niveau d'émissions : E
Description du bien
Profitez de la Barcelone la plus traditionnelle et de tous les avantages de vivre à proximité du centre-ville et du Paseo de Gracia avec ce merveilleux appartement situé dans un immeuble royal de l’Eixample. La rénovation a mis en valeur la beauté des éléments d’origine tels que les sols en mosaïque hydraulique Nolla et la voûte catalane au plafond, en y ajoutant tout le confort d’aujourd’hui.
L’appartement a 162 m2 construits intérieures et se trouve au quatrième étage réel et jouit de belles vues sur la Gran Via de les Corts Catalanes et le théâtre Coliseum. Un grand hall d’entrée mène sur la gauche à un salon-salle à manger spacieux et lumineux, baigné de lumière naturelle, et donnant accès à un balcon de 2 m2 donnant sur la Gran Via. La cuisine est indépendante et équipée d’appareils AEG. Dans la partie centrale de l’appartement se trouve un grand espace ouvert qui peut être utilisé selon les souhaits de l’acheteur : bibliothèque, salle de lecture, bureau, etc.
La partie nuit comprend 3 chambres très calmes. La chambre principale dispose d’une salle de bains attenante et d’un accès à une agréable terrasse de 8 m2 donnant sur la cour. La deuxième chambre est une chambre double et a également accès à cette terrasse. Enfin, il y a une chambre simple et une salle de bains séparée.
L’appartement dispose de sols hydrauliques combinés au microciment, d’une voûte catalane au plafond, de l’air conditionné chaud/froid par gaines, de fenêtres extérieures insonorisées de première classe afin qu’aucun bruit de la rue ne puisse entrer et de portes de qualité. L’immeuble dispose d’un ascenseur.
Cette propriété est située dans un endroit exceptionnel, à une rue de la Plaza Catalunya, de la Rambla Catalunya et du Paseo de Gracia. Vous aurez les meilleurs services, restaurants et boutiques de la ville à portée de main, ainsi que d’excellentes liaisons de transport public vers le centre-ville, le train à grande vitesse et l’aéroport.
N’hésitez pas à contacter Bcn Advisors pour visiter cette propriété.
* Le prix indiqué ne comprend pas les taxes (ITP pour les propriétés d’occasion ou TVA et AJD le cas échéant pour les propriétés de nouvelle construction), ni les frais de notaire, d’enregistrement foncier, d’agence administrative, ni aucun autre frais lié à la transaction qui, conformément à la réglementation en vigueur, sont à la charge de l’acheteur. Les honoraires d’agence immobilière seront pris en charge par le vendeur, conformément au mandat signé.
Carte
* Nous vous communiquerons l'adresse lorsque nous aurons programmé la visite.
Vue 3D
BCN074660055
1.330.000 €
Appartements à vendre à La Dreta

Cette propriété est située à :
Autres propriétés à La Dreta
Propriétés similaires susceptibles de vous intéresser
Vendu
Penthouses à vendre à Sarrià
1.275.000 €
BCN047502462
Penthouse en duplex avec grande terrasse et belles vues à Sarrià
Ce magnifique penthouse en duplex de 159 m2 d'intérieur construit et 66 m2 de terrasse est situé dans le quartier de Sarrià, une zone résidentielle calme, à côté du parc Joan Reventós. Il offre dans les environs des commerces, des services, des écoles internationales prestigieuses, des écoles de commerce, des centres médicaux privés et de magnifiques communications par la Via Augusta, la Ronda de Dalt et les transports publics. Cette propriété est en excellent état et se compose de deux étages. Au première étage, il y a un salon spacieux, une cuisine/salle à manger, une salle de bains et deux chambres qui peuvent être jointes ou séparées par une porte coulissante. L'étage supérieur se compose d'une chambre principale avec salle de bains et d'un autre espace pouvant servir de bureau, d'étude, de salle de séjour ou de chambre à coucher. Ces deux pièces ont accès à l'impressionnante terrasse qui offre une vue spectaculaire sur la mer et les montagnes. Ce penthouse comprend 2 places de parking et une salle de stockage dans le même bâtiment. Il est équipé de parquet, de l'air conditionné chaud/froid par splits et d'un chauffage au gaz naturel. La capitale catalane est une ville qui surprend toujours, et nos penthouses de luxe à vendre à Barcelone témoignent de sa beauté. Explorez les options disponibles et trouvez votre oasis de luxe.
159 m²
Plan d'étage
66 m²
Terrasse
3
Chambres
2
Salles de bains
1.275.000 €
Exclusif
Neuf
Réservé
Programmes neufs à vendre à La Dreta
1.107.780 €
BCN069317981
Magnifique et luxueuse propriété dans un un bâtiment rénové à Eixample
Cet appartement sensationnel bénéficie d'un excellent emplacement à Barcelone et fait partie d'un projet de rénovation complet dans un édifice royal de 1910 avec des appartements de luxe. Le bâtiment se trouve à l'angle de la Carrer Girona, qui est déjà en train d'être transformée en rue piétonne et dont les travaux sont presque terminés, et de l'Avinguda Diagonal, qui est en train de devenir un boulevard avec une grande zone piétonne, des espaces verts et des pistes cyclables, réduisant ainsi considérablement le trafic automobile. Vous pourrez profiter du meilleur de Barcelone dans un emplacement incomparable : au cœur de l'Eixample, très proche du Paseo de Gracia, du centre-ville et de tous les commerces et services. Cet appartement situé au troisième étage réel dispose de 137,2 m2 d'espace intérieur et de 2 balcons d'une superficie totale de 3 m2. Un hall d'entrée privé mène au hall d'entrée et au couloir, qui mène au grand salon-salle à manger de 45 m2 avec balcon. Il est d'angle, bénéficie d'une grande lumière naturelle, ce qui est atypique dans le quartier, et de vues uniques avec beaucoup de profondeur. Il crée ainsi une atmosphère extraordinaire qui permet de différencier clairement plusieurs espaces. La cuisine est semi-ouverte mais occupe un espace très indépendant, et à côté se trouve une buanderie. L'espace nuit comprend trois chambres à coucher. L'exceptionnelle suite parentale dispose d'un bureau à l'entrée, qui sépare la salle de bains privée de la chambre à coucher. Elle dispose d'un balcon donnant sur la rue. En outre, il y a une chambre double intérieure et une chambre de taille moyenne, ainsi qu'une salle de bains séparée. L'appartement est doté de matériaux et de finitions de la plus haute qualité, ainsi que d'une décoration intérieure soignée dans les moindres détails, qui combinera les éléments classiques des édifices royaux avec les éléments les plus modernes. Les grands espaces et la luminosité seront importants, car ils permettront de trouver un équilibre entre les éléments traditionnels tels que les plafonds voûtés catalans restaurés et le confort et les équipements d'un nouveau bâtiment: chauffage par le sol et air conditionné chaud et froid canalisé alimenté par l'aérothermie (la dernière technologie en matière de systèmes de climatisation qui permet de réaliser des économies d'énergie de 60 à 70 % par rapport aux systèmes conventionnels), appareils électroménagers Siemens haut de gamme, parquet en bois naturel, porte d'entrée avec serrure de sécurité, armoires encastrées, carrelage en porcelaine sur les murs de la salle de bains, robinetterie italienne design, éclairage LED, connexion par fibre optique, prises de signal Internet et TV, etc. L'immeuble, qui sera entièrement rénové, disposera de 2 ascenseurs (l'original restauré en respectant sa cabine en bois avec un nouveau mécanisme et un autre entièrement neuf), d'un concierge, d'une zone de recharge pour les vélos électriques et d'un gymnase privé de style moderniste-vintage avec voûte catalane, sols hydrauliques et salle de bain complète. La grande façade principale du bâtiment, ainsi que les nombreuses cours intérieures et la façade arrière, offrent au bâtiment une lumière et une ventilation inégalées. La distance inhabituelle entre les bâtiments parallèles à la façade renforce encore la sensation et la perception d'espace. Comme il s'agit d'un bâtiment moderniste ayant une valeur historique importante, l'équipe chargée de l'aménagement intérieur a donné la priorité à la récupération de certains éléments d'origine. Par exemple, une restauration complète et une réhabilitation des stucs modernistes du cœur de l'escalier ont été effectuées ; et dans les halls d'entrée de l'indépendance, des mosaïques hydrauliques récupérées seront installées pour maintenir la valeur historique du bâtiment. En outre, la menuiserie extérieure a été modifiée avec des fenêtres et des balcons en bois avec rupture de pont thermique et verre isolant feuilleté. Ce bâtiment comprend des appartements de 1, 2 et 3 chambres dont les prix commencent à 522 000 €, 613 480 € et 938 840 €, respectivement. Contactez Bcn Advisors pour plus d'informations.
137.21 m²
Plan d'étage
3 m²
Terrasse
3
Chambres
2
Salles de bains
1.107.780 €
Exclusif
Vendu
Maisons à vendre à La Dreta
1.195.000 €
BCN067180013
Maison de ville unique avec patio, terrasse et parking dans l’Eixample
Cette propriété est très spéciale en raison de ses caractéristiques et de son emplacement, car il s'agit d'une maison à Dreta del Eixample, dans une rue semi-piétonne à côté du Paseo Sant Joan. Le confort et l'intimité sont réunis au cœur de la ville, à quelques pas de tous les services, magasins, restaurants et transports publics que vous pouvez imaginer. Cette maison a une surface intérieure construite de 180 m2, un patio de 17 m2 et une terrasse solarium sur le toit de 40 m2. Le rez-de-chaussée est la zone jour, sur 2 niveaux avec une mezzanine, qui permet de différencier le salon et la salle à manger. La cuisine ouverte a accès au patio de 17 m2, où se trouve une pièce de rangement. C'est l'endroit idéal pour déjeuner, dîner ou simplement se détendre en plein air. Il y a également des toilettes. Le deuxième étage est la zone de couchage et comprend deux chambres avec leur propre salle de bains, qui sont extérieures et lumineuses. La suite principale dispose d'une grande armoire. Au dernier étage se trouve l'espace aquatique et la terrasse solarium, où vous pourrez profiter du soleil toute la journée. Le sous-sol dispose d'un espace polyvalent et diaphane de 69 m2 où l'on peut faire une chambre, un petit appartement, une salle de jeux ou de cinéma, etc. Elle dispose d'un système de ventilation automatisé et d'un puits de lumière depuis la cour. Rénovée en 2020, la maison conserve la voûte catalane et un mur de briques apparentes de la maison originale de 1900. Elle est équipé de finitions de qualité supérieure, d'une climatisation chaude/froide canalisée, d'un sol en microciment dans la zone jour et en parquet dans la zone nuit, et d'une installation de gaz naturel pour la cuisine. Le prix comprend un grand espace de stationnement pour une grande voiture et deux motos, qui dispose également d'une salle de stockage verrouillable.
181 m²
Plan d'étage
57 m²
Terrasse
3
Chambres
2
Salles de bains
1.195.000 €
Nouveauté
Appartements à vendre à Gòtic
1.120.000 €
BCN077880010
Magnifique appartement rénové dans un immeuble moderniste du Quartier Gothique
Cet appartement entièrement rénové est situé sur la Via Laietana, au cœur de Barcelone, à proximité de la cathédrale et à seulement 10 minutes à pied de la Plaza Catalunya. Dans les environs, vous pourrez découvrir la riche histoire, les rues et les places pittoresques du quartier gothique, ainsi que profiter du quartier animé du Born, avec ses nombreuses possibilités de divertissement, et du vaste parc de la Ciutadella. Le quartier offre une grande variété de magasins, de restaurants, de boutiques de luxe, de centres commerciaux, de services et un excellent réseau de transports en commun. L'appartement est situé dans un immeuble historique de style noucentiste, connu sous le nom de Casa Lluís Guarro, construit en 1922. Ce chef-d'œuvre a été conçu par le célèbre architecte moderniste Josep Puig i Cadafalch, qui a également créé la Casa de les Punxes et la Casa Amatller, entre autres. L'immeuble dispose d'un ascenseur et d'un concierge. La propriété présente une surface construite intérieure de 155,9 m² et un balcon de 4 m² avec vue sur la cathédrale. Elle se trouve au troisième étage de l'immeuble, ce qui garantit calme et luminosité. Le hall d'entrée mène à un espace de vie spectaculaire et ouvert, qui comprend le salon-salle à manger de 45 m² et une cuisine ouverte de 32 m² avec un îlot central occupant un espace distinct. Le salon donne accès au balcon. De part et d'autre du salon se trouvent les 3 chambres : la chambre principale en suite avec salle de bains privée et dressing, et 2 chambres doubles qui partagent une salle de bains. Enfin, à l'entrée de l'appartement, il y a des toilettes de courtoisie. Le logement a fait l'objet d'une rénovation complète, minutieuse dans les moindres détails, qui en a fait un logement raffiné et exclusif. Il est équipé de sols de haute qualité, de menuiseries soigneusement sélectionnées et d'une climatisation réversible par conduits. Si cette propriété vous intéresse, n'hésitez pas à contacter Bcn Advisors pour obtenir plus d'informations. * Le prix indiqué ne comprend pas les taxes (ITP pour les propriétés d'occasion ou TVA et AJD le cas échéant pour les propriétés de nouvelle construction), ni les frais de notaire, d'enregistrement foncier, d'agence administrative, ni aucun autre frais lié à la transaction qui, conformément à la réglementation en vigueur, sont à la charge de l'acheteur. Les honoraires d'agence immobilière seront pris en charge par le vendeur, conformément au mandat signé.
155.95 m²
Plan d'étage
4.56 m²
Terrasse
3
Chambres
2
Salles de bains
1.120.000 €
Exclusif
Appartements à vendre à Raval
1.395.000 €
BCN075990010
Excellent appartement moderniste rénové avec terrasse au centre de Barcelone
Ce magnifique appartement est situé dans la rue Pelai, le point de rencontre entre l'Eixample et le centre de Barcelone, tout près de la Plaza Catalunya. Il vous permet donc de profiter de toute l'histoire et de la tradition de Barcelone, à proximité des meilleurs centres commerciaux, services, restaurants et boutiques, ainsi que d'une connexion imbattable par les transports publics. L'appartement est situé au premier étage d'un immeuble noble de 1900 avec ascenseur. Il s'agit d'un appartement très lumineux de 164 m2 d'intérieur construit, avec des plafonds hauts de presque 4 mètres. Il dispose en outre d'une terrasse de 12,6 m2 dans les chambres, d'un balcon de 5,8 m2 dans le salon et d'un patio intérieur de 11,3 m2. Le salon spacieux dispose d'une cuisine intégrée. Trois grandes fenêtres et le balcon offrent des vues sur la rue et beaucoup de lumière naturelle. La salle à manger est située au centre de l'appartement et dispose d'une salle de bain, d'une buanderie, d'un débarras et de la cour intérieure. De l'autre côté de l'appartement, le coin nuit comprend deux chambres avec salle de bains et dressing, qui ont accès à la terrasse tranquille donnant sur la cour intérieure, et une troisième chambre idéale pour les invités ou pour être utilisée comme bureau. L'appartement a été rénové il y a quelques années et est dans un état impeccable, presque neuf. Son caractère original a été renforcé par la restauration de tous les éléments anciens, tels que les sols hydrauliques et la voûte catalane, et par l'utilisation de finitions et de matériaux qui reproduisent ceux d'origine. L'appartement est équipé de l'air conditionné chaud/froid. N'hésitez pas à contacter Bcn Advisors pour visiter cet appartement. * Le prix indiqué ne comprend pas les taxes (ITP pour les propriétés d'occasion ou TVA et AJD le cas échéant pour les propriétés de nouvelle construction), ni les frais de notaire, d'enregistrement foncier, d'agence administrative, ni aucun autre frais lié à la transaction qui, conformément à la réglementation en vigueur, sont à la charge de l'acheteur. Les honoraires d'agence immobilière seront pris en charge par le vendeur, conformément au mandat signé.
164.26 m²
Plan d'étage
29.81 m²
Terrasse
3
Chambres
3
Salles de bains
1.395.000 €
Appartements à vendre à La Dreta
1.225.000 €
BCN074209744
Merveilleux appartement rénové dans un bâtiment royal d’angle de l’Eixample
Ce tout nouvel appartement rénové de 130 m2, avec 3 chambres, bénéficie d'une situation enviable dans la partie supérieure de la Dreta del Eixample, à côté du Paseo Sant Joan et de l'Avenida Diagonal. Il est situé au 2ème étage réel d'un immeuble royal sur un coin, ce qui le rend très lumineux et offre des vues dégagées sur la ville. Un grand hall d'entrée avec une armoire nous accueille dans l'appartement. Sur la gauche, on accède au fantastique salon-salle à manger avec cuisine intégrée. C'est un espace plein de lumière naturelle, avec 3 grandes fenêtres et 2 balcons donnant sur le Paseo Sant Joan. Le coin nuit comprend 3 chambres. La chambre principale dispose d'une salle de bains privative et d'une galerie paisible donnant sur la cour, qui peut être utilisée comme bureau. Les deux autres chambres (une double et une simple) donnent sur la cour du bâtiment et partagent une salle de bains séparée. En outre, un dressing moderne séparé avec des portes coulissantes en verre se trouve en face de l'une des chambres. L'appartement conserve des caractéristiques originales telles que les sols carrelés dans le hall d'entrée et la cuisine, les hauts plafonds de 3,3 mètres avec voûte catalane et poutres en bois dans le salon et les moulures et rosaces dans le reste de l'appartement. L'appartement est équipé de parquet en bois naturel en chevrons, de sols en porcelaine dans les salles de bains, d'appareils électroménagers Bosch haut de gamme, de l'air conditionné par conduits et du chauffage par radiateurs. L'immeuble dispose d'un ascenseur. Le quartier autour de cette propriété dispose de tous les commerces et services nécessaires à la vie quotidienne, de boutiques sur l'Avenida Diagonal, d'un large éventail de restaurants sur le Paseo Sant Joan et d'excellentes liaisons avec les transports publics. N'hésitez pas à contacter Bcn Advisors pour visiter cet appartement. * Le prix indiqué ne comprend pas les taxes (ITP pour les propriétés d'occasion ou TVA et AJD le cas échéant pour les propriétés de nouvelle construction), ni les frais de notaire, d'enregistrement foncier, d'agence administrative, ni aucun autre frais lié à la transaction qui, conformément à la réglementation en vigueur, sont à la charge de l'acheteur. Les honoraires d'agence immobilière seront pris en charge par le vendeur, conformément au mandat signé.
130 m²
Plan d'étage
3 m²
Terrasse
3
Chambres
2
Salles de bains
1.225.000 €








































































































