Vendu
Penthouses à vendre à La Dreta
Impressionnant penthouse rénové avec terrasses et parking à Rambla Catalunya
1.375.000 €
BCN073039496
Impressionnant penthouse rénové avec terrasses et parking à Rambla Catalunya
1.375.000 €
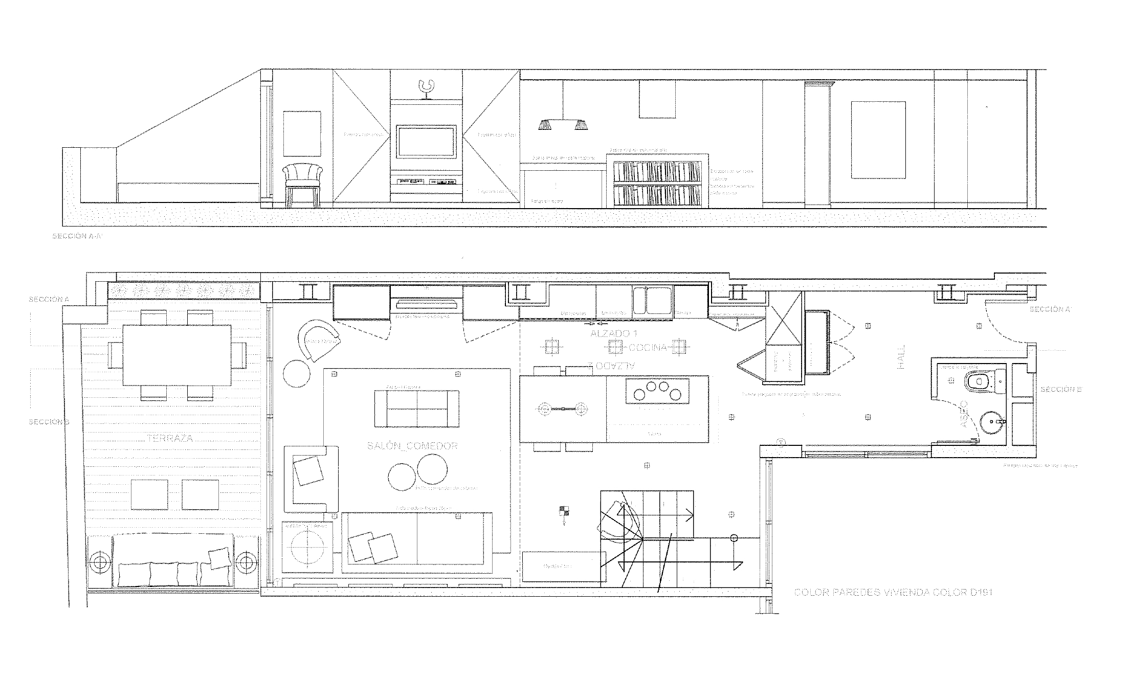
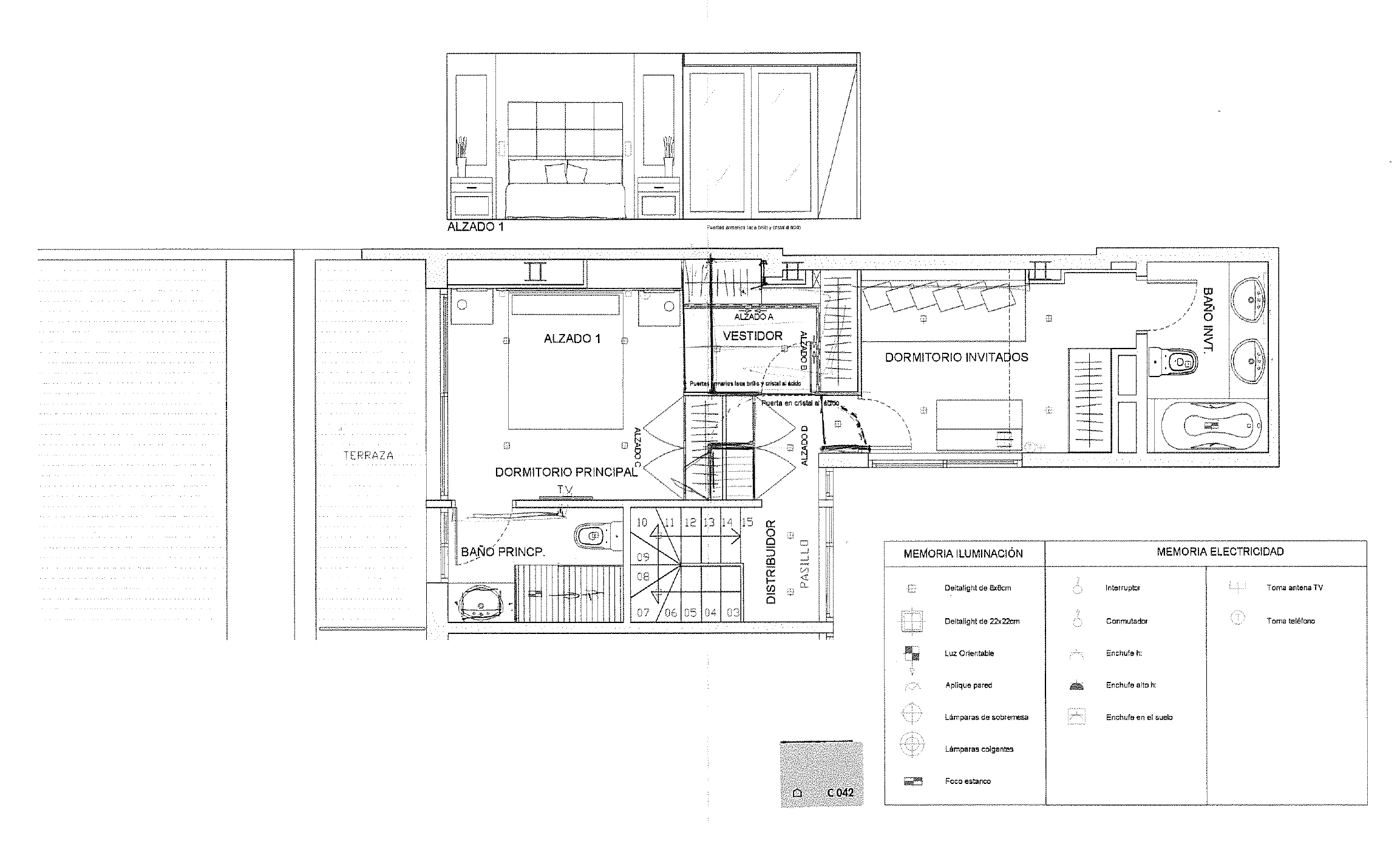
106 m²
Plan d'étage
28 m²
Terrasse
2
Chambres
2
Salles de bains
Extras
Année de construction : 2000
Rénové
Classe énergétique : E
Description du bien
Duplex penthouse de 106 m2 construits à l’intérieur et 2 terrasses totalisant 28 m2 au cœur de la Rambla Catalunya, avec une rénovation de haute qualité. Il est situé dans un bâtiment moderne avec parking, une caractéristique très exclusive dans le quartier. Son orientation sud lui confère une lumière naturelle tout au long de la journée. Il s’agit sans aucun doute d’une propriété unique que vous ne pouvez pas manquer.
Le premier étage est la partie jour. Il dispose d’un spectaculaire salon-salle à manger avec cuisine ouverte et îlot central. Il donne accès à une terrasse de 18 m2 orientée au sud, ce qui rend la zone de jour très lumineuse. Cet étage comprend également des toilettes pour les invités.
Le deuxième étage est le coin nuit, avec deux chambres à coucher avec salle de bains privative. La chambre principale dispose d’un dressing et d’un accès à une terrasse de 10 m2, également orientée au sud et offrant une vue magnifique. L’autre chambre est double et dispose d’une armoire. Les deux terrasses sont le joyau de ce penthouse, car c’est un véritable luxe de pouvoir profiter d’un espace en plein air avec des vues sur l’ensemble de Barcelone dans une rue aussi emblématique que la Rambla Catalunya, un emplacement de choix dans la ville.
Ce penthouse a été rénové avec des matériaux et des finitions de grande qualité. Il est équipé d’une climatisation centralisée chaud/froid, de parquets, d’une double menuiserie en aluminium avec isolation thermique et d’appareils électroménagers haut de gamme dans la cuisine.
La propriété est située au 9ème et 10ème étage dans un immeuble construit en 2000, avec ascenseur et concierge. Le prix comprend une place de parking pour une grande voiture, ce qui est rare dans l’Eixample. Elle se trouve dans la partie supérieure de la Rambla Catalunya, à proximité de l’Avenida Diagonal et de La Pedrera sur le Paseo de Gracia, et à 15 minutes de marche de la Plaza Catalunya. Dans les environs, vous trouverez de nombreux services, magasins, boutiques de grandes marques, restaurants et transports publics.
N’hésitez pas à contacter Bcn Advisors pour visiter cet appartement.
Carte
* Nous vous communiquerons l'adresse lorsque nous aurons programmé la visite.
BCN073039496
1.375.000 €
Penthouses à vendre à La Dreta

Cette propriété est située à :
Autres propriétés à La Dreta
Propriétés similaires susceptibles de vous intéresser
Prix réduit
Appartements à vendre à Gòtic
1.100.000 €
BCN076190010
Spectaculaire appartement rénové en première ligne de mer sur le Passeig Colom
Cette propriété de luxe rénové à neuf bénéficie d'un emplacement exceptionnel sur le Passeig Colom, face au Port Vell. Il est situé au troisième étage réel d'un magnifique immeuble historique où a vécu Pablo Picasso, sur le front de mer du quartier gothique, ce qui vous permettra de profiter de la Barcelone la plus traditionnelle dans un cadre incomparable. L'appartement a une superficie intérieure de 116 m². Le grand salon-salle à manger avec cuisine intégrée et îlot central est accueillant et lumineux, et comprend un espace bureau idéal pour le télétravail. Il dispose d'un balcon avec une vue magnifique sur la mer et le port. La rénovation impeccable a permis de conserver et de restaurer les moulures du plafond, préservant ainsi le charme classique de l'appartement et lui apportant une touche de grandeur inégalée. La zone nuit comprend 2 chambres en suite, chacune avec sa propre salle de bain. La chambre principale, d'une superficie utile de 20 m², dispose d'un balcon avec vue sur la mer et le port. Elle est également équipée d'élégantes armoires ouvertes, créant ainsi un dressing. La deuxième chambre, d'une superficie utile de plus de 10 m², est intérieure. Enfin, une buanderie se trouve à l'entrée de l'appartement. L'appartement comprend des meubles de haute qualité provenant de Dubaï. Il est équipé de parquet, de la climatisation réversible par splits et d'appareils électroménagers haut de gamme. Le bâtiment dispose d'un hall d'entrée et d'un escalier entièrement rénovés et restaurés, ainsi que d'un ascenseur neuf. Ce logement allie confort maximal et tradition. Il est situé dans un quartier qui offre le charme des rues et des places historiques de Barcelone, ainsi que tous les services et commerces nécessaires à la vie quotidienne, notamment un grand centre commercial à quelques pas. De plus, il est très bien desservi par les transports en commun. N'hésitez pas à contacter Bcn Advisors pour découvrir cet appartement.
116 m²
Plan d'étage
2 m²
Terrasse
2
Chambres
2
Salles de bains
1.100.000 €
Vendu
Penthouses à vendre à L'Antiga Esquerra
1.190.000 €
BCN074829980
Imposant penthouse design rénové avec terrasse dans l’Eixample
Ce penthouse vous permettra de toucher le ciel de Barcelone et de profiter du soleil et des vues fantastiques depuis sa terrasse. Avec une situation privilégiée très proche de la Plaza Francesc Macià, cette propriété vous offre une expérience de vie inégalée dans la grande ville, avec le confort, l'intimité, la luminosité et le charme de l'architecture traditionnelle représentée par les plafonds voûtés catalans, les poutres apparentes et les murs en briques. Il s'agit d'un penthouse au neuvième étage du bâtiment, il n'y a donc pas d'appartement au-dessus. Il dispose de 113 m2 d'intérieur construit et d'une terrasse de 35 m2 avec une orientation exceptionnelle qui garantit un ensoleillement tout au long de la journée. Il a été rénové en 2021 avec un concept moderne et fonctionnel ainsi que des finitions design. L'entrée mène directement à l'espace jour spacieux, composé d'un salon-salle à manger avec cuisine ouverte et îlot central. L'atmosphère est très accueillante et pleine de vie avec une grande luminosité, en plus de l'excellente touche de la volta catalane sur les plafonds et une cheminée qui apporte chaleur et distinction. Depuis le salon, on accède à la terrasse, face à la mer. C'est l'endroit idéal pour célébrer des repas animés et des réunions avec la famille et les amis, ou simplement pour se détendre dans le climat agréable de Barcelone. La partie nuit comprend deux chambres incroyablement lumineuses. La chambre principale dispose d'une salle de bains privative, fait face à la montagne et donne sur la cour. L'autre chambre est de taille moyenne et donne sur la cour intérieure du bâtiment. Une salle de bains séparée se trouve à côté. Le penthouse est équipé de l'air conditionné par splits, du chauffage par radiateurs au gaz naturel, de parquets synthétiques. L'immeuble dispose d'un service de conciergerie du lundi au vendredi et de 2 ascenseurs. Son entrée a été récemment rénovée. Ce penthouse jouit d'un excellent emplacement avec tous les avantages de l'Eixample et du quartier huppé à quelques pas. Le quartier environnant dispose de toutes sortes de services, de magasins, du centre commercial El Corte Inglés, de restaurants, d'espaces verts tels que le parc Turó et d'options de transport public. N'hésitez pas à contacter Bcn Advisors pour visiter cet appartement.
113 m²
Plan d'étage
35 m²
Terrasse
2
Chambres
2
Salles de bains
1.190.000 €
Exclusif
Vendu
Penthouses à vendre à La Dreta
1.390.000 €
BCN066610011
Incroyable penthouse avec licence touristique et terrasse au centre de Barcelone
Cet appartement-terrasse exclusif dispose d'une licence touristique et offre un excellent rendement. Il dispose d'une superficie intérieure de 89,87 m² et d'une superbe terrasse de 93,43 m² au pied du salon. C'est un bien immobilier exceptionnel en raison de ses caractéristiques et de son excellent emplacement au cœur de Barcelone, à seulement deux rues de la Plaza Catalunya, du Paseo de Gracia et de La Rambla. Rénové il y a quelques années avec des matériaux et des finitions de la plus haute qualité, il offre tout le nécessaire pour vivre dans un confort maximal. Il s'agit d'une occasion unique de vivre dans une oasis de luxe avec accès à toutes les commodités de la grande ville ou comme investissement. En 2024, le chiffre d'affaires net après frais s'élevait à environ 120 000 €, soit un rendement supérieur à 8 %. Le salon-salle à manger est spacieux et très lumineux, car il est entièrement vitré. Il dispose d'un accès direct à la terrasse, avec une excellente orientation sud pour profiter du soleil toute la journée et de vues incroyables sur toute la ville. C'est l'endroit idéal pour prendre le soleil, faire des réunions agréables, déjeuner, dîner, se détendre en plein air... Il dispose d'un sol en bois tropical, d'un jardin design, d'un éclairage LED, d'une douche à eau chaude et d'une pièce de rangement de 1,5 m2. En retournant à l'intérieur, la salle à manger nous mène à une merveilleuse cuisine avec îlot central. Il est entièrement équipé d'appareils électroménagers Siemens et d'une cuisine Siematic. A côté, il y a une salle de bain avec douche. À côté du salon, il y a des toilettes pour les invités et une buanderie. Les 2 chambres sont extérieures et lumineuses. La suite principale peut accueillir un lit king size et sa salle de bains est dotée d'une grande baignoire. L'autre chambre est une chambre double. La deuxième salle de bains se trouve à côté du salon et dispose d'une douche à l'italienne. Ce penthouse est le seul appartement situé au dernier étage de l'immeuble, ce qui garantit une grande tranquillité et une grande intimité. Elle est équipée de sols en bois et en microciment dans les chambres, la cuisine et les salles de bains, d'un chauffage central Saunier Duval avec radiateurs dans tout le bâtiment, d'une climatisation Daikin, d'une cheminée à gaz Dru, de stores électriques Markilux, de fenêtres Technal et de robinetterie Dornbracht. L'immeuble, un édifice typique de l'Eixample, dispose d'un ascenseur, d'un portier et de caméras de vidéosurveillance.
89.87 m²
Plan d'étage
93 m²
Terrasse
2
Chambres
2
Salles de bains
1.390.000 €
Penthouses à vendre à El Born
1.495.000 €
BCN075290010
Superbe penthouse rénové avec 2 terrasses à El Born
Ce penthouse entièrement rénové à neuf est situé à côté du Parc de la Ciutadella, dans l’un des meilleurs emplacements du quartier d’El Born. Il se trouve dans un immeuble historique de la fin du XIXe siècle, et la rénovation associe le charme de la tradition à des matériaux et finitions haut de gamme, offrant luxe et confort. Le penthouse dispose de 101 m² construits intérieurs et de deux terrasses de 37 m² et 17 m². Le salon-salle à manger avec cuisine intégrée est très spacieux, lumineux et calme, car il donne sur le patio intérieur d’îlot orienté sud-est. Il offre un accès à une terrasse couverte de 17 m², idéale pour se détendre en plein air tout en profitant de vues sur le centre historique et le marché du Born. L’espace nuit comprend 2 chambres et 2 salles de bains. La chambre principale est en suite avec sa propre salle de bains et donne accès à une superbe terrasse découverte de 37 m² donnant sur la rue, orientée nord-ouest, avec un sol en bambou. Ce sera votre coin préféré pour vous détendre loin de l’agitation quotidienne. La seconde chambre est double et dispose en face d’une salle de bains indépendante. Le bien est équipé d’éléments de haute qualité tels que parquet en chêne en point de Hongrie, climatisation réversible par conduits via un système aérothermique avec contrôle intelligent (permettant de zoner la climatisation et de la gérer depuis un écran dans le salon ou une application mobile), nouvelles fenêtres à double vitrage, électroménagers intégrés Bosch, etc. L’immeuble dispose d’un ascenseur. Vivre dans un penthouse dans le quartier du Born à Barcelone offre une combinaison parfaite d’histoire, de modernité et d’exclusivité. Vous profiterez de vues imprenables sur la ville, de terrasses ensoleillées et d’une grande tranquillité à l’écart de l’agitation des rues. De plus, vous serez entouré de rues médiévales, de boutiques, de restaurants et d’une vie culturelle dynamique. Sa proximité avec le Parc de la Ciutadella et la mer en fait un lieu idéal pour ceux qui recherchent qualité de vie et charme urbain. N’hésitez pas à contacter Bcn Advisors pour découvrir votre futur chez-vous.
101.17 m²
Plan d'étage
55.19 m²
Terrasse
2
Chambres
2
Salles de bains
1.495.000 €
Neuf
Programmes neufs à vendre à Diagonal Mar
1.150.000 €
BCN068937750
Formidable appartement avec terrasse et vue sur la mer dans un bâtiment de luxe
Cet appartement sensationnel est situé dans le plus haut immeuble résidentiel de luxe de Barcelone, unique dans la ville et le dernier de ce type à avoir été construit avant le changement de législation. Il s'agit d'un chef-d'œuvre architectural de 30 étages situé à Diagonal Mar, le quartier le plus moderne de Barcelone. Cet appartement est situé au quatrième étage. Il dispose de 99,7 m2 d'espace intérieur et d'une terrasse de 22,6 m2 avec vue sur la mer, à laquelle on peut accéder depuis le salon et la chambre. C'est l'endroit idéal pour se réunir, recevoir, recevoir des invités ou se détendre tout en profitant du climat agréable de Barcelone tout au long de l'année. La zone jour est un salon-salle à manger spacieux avec une cuisine ouverte équipée d'appareils électroménagers. La partie nuit comprend une suite principale avec salle de bain privée et baignoire, et une salle de bain séparée. Une place de parking est incluse dans le prix. Le bâtiment crée une expérience sensorielle parfaite, garantissant un style de vie exclusif. Qu'il s'agisse du centre de bien-être et du spa, du restaurant Grand Café Rouge au rez-de-chaussée, du parking et des jardins ou du court de paddle-tennis, ou encore des vues imprenables depuis la terrasse sur le toit et la piscine à débordement, chaque détail est conçu pour offrir des espaces qui inspirent. Avec l'équipe de concierges attentifs et le service de sécurité 24h/24, c'est plus qu'un espace de vie, c'est un style de vie.
99.7 m²
Plan d'étage
22.6 m²
Terrasse
1
Chambres
2
Salles de bains
1.150.000 €
Vendu
Appartements à vendre à La Dreta
1.390.000 €
BCN076550010
Appartement lumineux dans un immeuble noble spectaculaire à l’Eixample
Au cœur de la ville, un joyau architectural du XIXe siècle renaît dans toute sa splendeur. Situé au deuxième étage d’un immeuble d’angle distingué datant de 1865 avec la rue piétonne Girona, entièrement réhabilité en 2021, cet appartement de 94 m² incarne une harmonie parfaite entre passé et présent. Dès l’entrée dans le hall élégant du bâtiment, conçu à la fois pour les résidents et les véhicules, on ressent la majesté d’une autre époque. Les détails d’origine, restaurés avec soin, coexistent avec une rénovation complète qui a su préserver l’essence noble de l’immeuble tout en lui apportant tout le confort moderne. À l’intérieur, l’appartement séduit par sa lumière naturelle, son équilibre et son élégance. Chaque espace a été pensé pour offrir un confort quotidien sans renoncer au charme classique. Le salon-salle à manger est spacieux et baigné de lumière, avec deux balcons donnant sur la rue. La cuisine, équipée d’électroménagers haut de gamme, allie fonctionnalité et design, idéale pour le quotidien comme pour recevoir famille et amis. La zone de nuit comprend trois chambres avec placards intégrés — deux extérieures avec balcon et une en suite — ainsi qu’une seconde salle de bain complète. L’ambiance générale est sophistiquée et paisible : un refuge pour ceux qui apprécient la beauté de l’architecture traditionnelle tout en souhaitant bénéficier du confort et de la technologie d’aujourd’hui. L’appartement dispose de parquet et d’un système de climatisation réversible par conduits. L’immeuble bénéficie d’un service de conciergerie, garantissant sécurité, attention personnalisée et discrétion. En outre, il est possible de louer des places de parking dans le même immeuble (réservées uniquement aux résidents), avec accès direct depuis la rue et passage devant le concierge — un privilège rare d’exclusivité et d’intimité en plein cœur de l’Eixample. L’appartement se trouve à quelques mètres du Passeig de Gràcia et du Passeig de Sant Joan, vous permettant de profiter pleinement de leurs offres de loisirs, de restauration et de shopping, y compris les boutiques de luxe. Découvrez tout le splendeur de l’Eixample, avec tous les services nécessaires à votre quotidien et d’excellentes connexions de transport en commun. Plus qu’un appartement, c’est un fragment d’histoire réinventé, destiné à ceux qui recherchent un logement avec âme, élégance et modernité. N’hésitez pas à contacter Bcn Advisors pour organiser une visite.
94 m²
Plan d'étage
3 m²
Terrasse
3
Chambres
2
Salles de bains
1.390.000 €








































































































